


Online seit: 26.06.2025
Schuster aus Preussen - Nassenheide - Bungalow auf Wohngrundstück ca. 925 m² - sehr ruhiger und grüner Lage
16775 Löwenberger Land249.000 €
Kaufpreis
2.0
Zimmer
70 m²
Wohnfläche
925 m²
Grundstücksfläche
Ausstattung & Merkmale
Gäste WCKellerEinbaukücheGarage / Stellplatz
Eckdaten
| Kaufpreis: | 249.000 € |
| Käufercourtage: | 3,57 % inkl. gesetzl. Mwst. |
Beschreibung
ENERGIEAUSWEIS
- Energieeffizienzklasse: E
- erstellt am: 04.06.2024
- gültig bis: 04.06.2034
- Art des Energieausweises: nach Verbrauch
- Verbrauchskennwert insgesamt: ca. 137,01 kWh/(m²a)
- Verbrauch inkl. Warmwasser: ja
- Heizungsart: Fußbodenheizung, Zentralheizung
- Befeuerung: Elektro
- Baujahr: 2001
---------------
Bitte wählen Sie für die erste Anfrage die Kontaktaufnahme per Mail aus der Anzeige heraus!
Zum Verkauf steht ein Bungalow auf einem ca. 925 m² großen Wohngrundstück in Nassenheide.
Rundherum gibt es nur Einfamilienhäuser und Wochenendhäuser.
Die Straße ist wenig befahren - praktisch nur von den Anwohnern - und befindet sich in ausreichender Entfernung von der Nassenheide durchschneidenden B 96. Davon ist hier nichts zu hören und nichts zu sehen.
Hier dominiert der "Biolärm" von Vögeln und allerlei einheimischen Tieren.
Grün und ruhig also, ideal für die Entspannung nach der Arbeit.
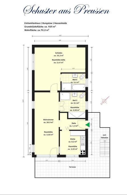
Der aufstehende Bungalow hat eine Wohnfläche von ca. 70,2 m².
Nahezu perfekt ist er für ein Ehepaar geeignet. Er verfügt über ein großes Wohnzimmer und ein auch viel Platz bietendes Schlafzimmer.
Wer es benötigt, könnte unter Umständen eines der beiden Badezimmer zu einem weiteren Zimmer umnutzen, oder aber das Schlafzimmer in zwei Räume aufteilen.
Das Haus wurde praktisch 2001 errichtet, wobei ein Teil auf Ständerbauweise basiert und der angebaute ist massiv errichet.
Die Fassade wurde mit einer Dämmung von ca. 10 cm versehen, und das Dach mit langlebigen und pflegeleichten Metalldachplatten eingedeckt.
In der Küche sind Einbaumöbel vorhanden, sowie entsprechende elektrische Geräte.
Eines der beiden Bäder ist mit einer großen Dusche ausgestattet, das andere mit einer Badewanne und ebenfalls mit einer viel Platz bietenden Dusche.
Das gesamte Haus wird mit speziellen Elektroöfen beheizt, bzw ein Teil der Räume auch mit einer - ebenfalls elektrischen - Fussbodenheizung.
Warmwasser wird mit Elektrospeichern erzeugt und bereit gestellt.
Im
Ausstattung
Bitte wählen Sie für die erste Anfrage die Kontaktaufnahme per Mail aus der Anzeige heraus!
Die Merkmale dieses Angebotes im Überblick:
+ Wohngrundstück mit ca. 925 m² Fläche
+ bebaut mit einem Bungalow aus dem Jahr 2001
+ Wohnfläche ca. 70,2 m²
+ derzeit 2 Zimmer - 3 Zimmer möglich
+ 2 Badezimmer mit jeweils einer Dusche - eines mit Badewanne
+ Küche mit Einbaumöbeln
+ Haus teilweise aus Ständerbauweise und teilweise massiv
+ Elektrozentralheizung - teilweise Fußbodenheizung
+ Warmwasser über Elektrospeicher
+ Kunststofffenster mit Rollläden
+ große - teilweise überdachte Südterrasse
+ Teilkeller
+ Nebengebäude mit Garage, Werkstatt und möglichem Gästezimmer
+ Erschließung: Wasser, zentrales Abwasser, Strom, Brunnen, DSL - Erdgas in der Straße vor dem Grundstück
Grundriss

Lage
Das Wohngrundstück liegt in ruhiger Waldlage von Nassenheide. Nassenheide ist über den eigenen Bahnhof mit dem Regionalexpress, oder Regionalbahn u.a. nach Templin, Neubrandenburg, Berlin-Ostkreuz und Berlin-Südkreuz verbunden.
Sonstiges
Bitte wählen Sie für die erste Anfrage die Kontaktaufnahme per Mail aus der Anzeige heraus!
Besichtigungen vereinbaren Sie bitte unter schusterauspreussen@mail.de mit Herrn Rainer Schuster.
Alle Informationen sind Informationen des Verkäufers. Trotz gewissenhafter Erstellung des Exposés können Irrtümer auftreten. Eine Haftung dafür schließen wir ausdrücklich aus.
Der Zwischenverkauf bleibt vorbehalten.
Die Verhandlung mit dem Verkäufer sind stets freibleibend, vorbehaltlich des Zwischenverkaufs sowie vorbehaltlich der Zustimmung des Verkäufers.
Schadensersatzansprüche aus Beratungs-, Finanzierungskosten etc. werden nicht anerkannt bzw. übernommen.

Schuster aus Preussen KG
Herr Rainer Schuster
Impressum- Telefonisch (Festnetz): 03091207337
- Fax: 03091207338
- Telefonisch (Mobil): 01772784143
Exposé-ID: 29156528 | Referenz-ID: 10548
Ähnliche Immobilien
Wie auf allen Online-Portalen kann es auch bei meinestadt.de in Einzelfällen passieren, dass gefälschte Anzeigen ausgespielt werden. Trotz umfangreicher Bemühungen lässt sich das leider nicht vollständig vermeiden. Lies hier unsere Sicherheitshinweise zum Thema Immobilienbetrug und erfahre, woran du solche Anzeigen erkennst, wie du dich vor Betrugsversuchen schützt und wie du dich im Betrugsfall verhältst. Bitte beachte, dass meinestadt.de und immowelt.de nicht für die Inhalte der Inserate verantwortlich sind und im Schadensfall nicht haften.

Jetzt noch schneller sein
Neue Immobilien? Du erfährst es zuerst!
Die meinestadt.de App benachrichtigt dich sofort per Push-Mitteilung, wenn neue Immobilien eingestellt wurden, die zu deiner Suche passen. App jetzt downloadenServices für die Immobiliensuche
Weitere Häuser zum Kauf
Weitere Häuser zum Kauf
Wohnungen zum Kauf
Umgebungsinfos










