


Online seit: 11.12.2025
Zentral gelegene gepflegte 3-Zimmer-DG-Wohnung in Ahrensburg
22926 AhrensburgAusstattung & Merkmale
Eckdaten
| Kaufpreis: | 299.000 € |
| Hausgeld: | 468 € |
| Provision: | provisionsfrei |
Beschreibung
Ausstattung
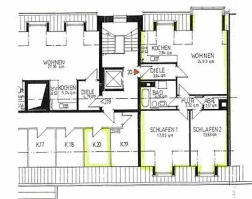
Grundriss

Lage
Die angebotene Eigentumswohnung befindet sich in zentraler Wohnlage der Schlossstadt Ahrensburg. Sämtliche Einkaufsmöglichkeiten sind bequem zu Fuß zu erreichen. Im Zentrum der Stadt finden Sie neben zahlreichen Boutiquen und Einzelhandelsgeschäften ein gut sortiertes Kaufhaus, das City Center Ahrensburg (CCA), diverse Ärzte und Banken sowie zahlreiche Cafés und Restaurants. Im Hinblick auf die Infrastruktur ist die Wohnung sehr gut gelegen. Die Autobahn A1 Hamburg-Lübeck ist schnell erreicht, so dass Sie innerhalb von 30 Autominuten das Hamburger Zentrum erreichen können. Eine Bushaltestelle liegt direkt neben dem Objekt. Die Regionalbahn-Station Ahrensburg ist in wenigen Minuten per Bus oder zu Fuß zu erreichen. Von dort gelangt man in 15 bis 23 Minuten bequem die Hamburger Innenstadt. Für eine individuelle Freizeitgestaltung ist ausreichend gesorgt, das Angebot an Sportmöglichkeiten ist vielfältig und schnell erreichbar. Infrastruktur (im Umkreis von 5 km): Apotheke, Lebensmittel-Discount, Allgemeinmediziner, Kindergarten, Grundschule, Hauptschule, Realschule, Gymnasium, Gesamtschule, Öffentliche Verkehrsmittel
Sonstiges
Private:r Anbieter:in
Privat vom Eigentümer
Exposé-ID: 29535701 | Referenz-ID: 128634
Ähnliche Immobilien









