


Online seit: 01.03.2023
Grundstück für eine geplante Doppelhaushälfte in Trebbin mit Baugenehmigung
14959 Trebbin156.564 €
Kaufpreis
392 m²
Grundstücksfläche
Eckdaten
| Kaufpreis: | 156.564 € |
| Käufercourtage: | 7,14 % vom Kaufpreis ink. 19 % MwSt. |
Beschreibung
Das hier zum Kauf angebotene ruhig gelegen Grundstück mit ca. 392 m² bestehend aus Bauland, Gartenland und anteiliger Straßenfläche wird mit einer Doppelhaushälfte verkauft.
Der Werkvertrag für die Bebauung mit einem Doppelhaus mit zwei Vollgeschossen und ca. 119 m² Wohnfläche wird mit der Firma Fibav abgeschlossen.
Das Grundstück ist von der Straße zurückgesetzt (dritte Reihe) und daher sehr ruhig gelegen.
Durch den Erwerb einer anteiligen Straßenfläche entsteht ein privater Zugang zu den Häusern.
Die Doppelhaushälfte wird zu einem Preis von 350.000,00 € angeboten. Die Baunebenkosten sind im Preis nicht enthalten und belaufen sich auf ca. 38.000,00 €.
Weitere Fragen zum Grundstück und zur Planung Ihrer Doppelhaushälfte beantworte ich Ihnen gern in einem persönlichen Gespräch, entweder in unseren Büroräumen in Berlin oder auch gern am Telefon.
Ausstattung
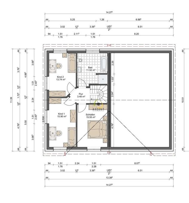
- Doppelhaushälfte der Firma Fibav mit 119 m² Wohnfläche
- Grundstück mit ca. 392 m²
- massive Bauweise
- Fußbodenheizung
- Rollläden im Ergeschoss
- Terrasse im Erdgeschoss mit Südausrichtung
- Großer Wohnbereich mit Südausrichtung
- offene Küche im Wohnbereich (ohne Einbauküche)
- 1. OG Badezimmer mit Badewanne und Dusche
- EG Duschbad mit WC
- Beheizung über Luft-Wasser-Wärmepumpe
- Carport neben dem Haus
- Keine Unterkellerung
Grundriss

Lage
Die amtsfreie Stast Trebbin liegt im Landkreis Teltow-Fläming. Trebbin liegt zwischen Teltow und dem Fläming am Rande einer Niederung östlich der Nuthe 36 Kilometer südlich von Berlin. Die Stadt liegt an der östlichen Grenze des Naturparks Nuthe-Nieplitz bzw. mit einigen Ortsteilen auch im Naturpark. Der Ortsteil Blankensee befindet sich am gleichnamigen See. Der Ortsteil Glau liegt an den Glauer Bergen. Die Bundesstraße B 101 ermöglich es sehr schnell Berlin zu erreichen.
Sonstiges
Die Provision in Höhe von 7,14 % inkl. der gesetzlichen Mehrwertsteuer bezogen auf den Grundstückspreis in Höhe von 158.100 € ist bei Vertragsabschluss fällig und zahlbar und vom Käufer an die AKZENT Finanz- und Immobilienservice GmbH zu zahlen. Wir weisen darauf hin, dass je nach Nachfrage der Angebotspreis nach Verhandlung noch steigen oder sinken kann. Es gelten unsere Allgemeinen Geschäftsbedingungen.

AKZENT Finanz- und Immobilienservice GmbH
Herr Alexander Lochmann
Impressum- Telefonisch (Festnetz): +49(30) 75541830
- Fax: 030755418399
Exposé-ID: 511071 | Referenz-ID: D473-bb
Ähnliche Immobilien
Wie auf allen Online-Portalen kann es auch bei meinestadt.de in Einzelfällen passieren, dass gefälschte Anzeigen ausgespielt werden. Trotz umfangreicher Bemühungen lässt sich das leider nicht vollständig vermeiden. Lies hier unsere Sicherheitshinweise zum Thema Immobilienbetrug und erfahre, woran du solche Anzeigen erkennst, wie du dich vor Betrugsversuchen schützt und wie du dich im Betrugsfall verhältst. Bitte beachte, dass meinestadt.de und immowelt.de nicht für die Inhalte der Inserate verantwortlich sind und im Schadensfall nicht haften.

Jetzt noch schneller sein










