


Online seit: 23.10.2024
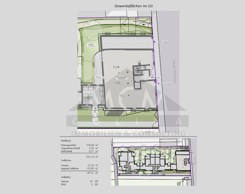
ERSTBEZUG -Gewerbeeinheit mit ca. 368,51 qm inkl. Außenfläche in Nied!
65934 Frankfurt am MainAusstattung & Merkmale
Eckdaten
| Kaltmiete: | 7.370 € |
| Warmmiete: | 8.660 € |
| Heizkosten in Nebenkosten enthalten: | Ja |
| Provision: | provisionsfrei |
| Nebenkosten: | 1.290 € |
| Kaution: | 22.110 € |
Beschreibung
Ausstattung
Grundriss

Lage
Nied: Der Wohnstadtteil Nied liegt zwischen Griesheim und Höchst 9 km westlich der Innenstadt am Zusammenfluss von Nidda und Main. In Alt-Nied (1982 eingemeindet) sind noch Reste des alten Bauern- und Fischerdorfes erkennbar. In den 60er Jahren entstanden Nied-Süd und die Parkstadt Nied am Westkreuz Frankfurt, in den 80er Jahren. An der Grenze zu Griesheim befindet sich das Wohngebiet Nied-Ost (1985). An der Oeser Straße liegt die Eisenbahner- Siedlung, 1918 bis 1933 nach der Gartenstadt – Idee erbaut und in den 50er Jahren erweitert. Heute steht sie unter Denkmalschutz. Auf dem Gelände des ehemaligen Eisenbahn-Ausbesserungswerk entstand zu Beginn der 90er Jahre ein neues Wohngebiets mit fast 200 öffentlichen geförderten Wohneinheiten. Es grenzt an das Naherholungsgebiet Nied – Wald. Verkehr: Über die Oeser Straße besteht Anschluss an die A 5 (Westkreuz Frankfurt, 3 km), die Mainzer Landstraße führt in die Innenstadt. Die S1 und die S 2 benötigen bis zur Hauptwache 13 Minuten, die Straßenbahnlinie 11 bis zum Römer 30 Minuten.
Sonstiges

MCM Immobilien
Frau Necla Biegler
Impressum- Telefonisch (Festnetz): 004917650678053
- Fax: 004969443011
- Telefonisch (Mobil): 004917650678053
Exposé-ID: 17254120 | Referenz-ID: 233185
Ähnliche Immobilien










