


Online seit: 08.10.2025
Traumwohnung! 2-Zi Wohnung m. Garten - KFW 40 NH
Am Steinkart 5b, 94086 Bad Griesbach im Rottal860 €
Kaltmiete
2.0
Zimmer
73 m²
Wohnfläche
Ausstattung & Merkmale
KellerBarrierefrei / für SeniorenEinbaukücheGarage / StellplatzPersonenaufzugGarten/-mitbenutzungprovisionsfrei
Eckdaten
Kaltmiete: | 860 € |
Heizkosten in Nebenkosten enthalten: | Ja |
Stellplatzmiete: | 100 € |
Provision: | provisionsfrei |
Nebenkosten: | 160 € |
Beschreibung
360°-Rundgang: https://www.ohne-makler.net/panorama/357021/
Traumhaft Wohnen & Leben in Bad Griesbach
Hier kommt Architektur und Wohngefühl in Einklang. Die
Wohnungen vereinen ein angenehmes Gefühl von Qualität und
Stilsicherheit. Die großzügig geschnittenen, lichtdurchfluteten
Räume bestechen durch hochwertige Materialien in zeitlos
schöner Ästhetik.
Im schönen Wohnbereich von Bad Griesbach realisieren wir für
Sie in der attraktivsten Lage, ein anspruchsvolles Neubau-Projekt
mit insgesamt vier Mehrfamilienhäusern mit insgesamt 44
Wohneinheiten der besonderen und modernen Art. Neben der
Qualität legen wir bei der Planung & Ausführung großen Wert auf
eine zeitgemäße und zur Region passenden Architektur.
Das Grundstück befindet sich traumhaft in erhöhter Lage am
Ende einer Siedlung gelegen und hat freiem Blick auf die Berge.
Stadtplatz, Ärzte und alle Einrichtungen des täglichen Bedarfs
sind bequem zu Fuß zu erreichen.
Die Wohnungen überzeugen durch Ihre großzügigen Balkone,
Dachterrassen & Terrassen mit Gärten. Die Gärten der
Erdgeschosswohnungen stehen dem Eigentümer zur alleinigen
Nutzung zur Verfügung. Die Penthouse-Wohnungen und
Obergeschosswohnungen haben eine traumhafte und
unverbaubare Aussicht mit Alpenblick. Aufzüge befördern alle
Bewohner bequem von der Tiefgarage in jede Etage. Ein
Großteil der Wohnungen ist barrierefrei erschossen.
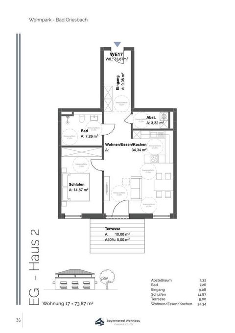
Unsere sonnige 2-Zimmer-Gartenwohnung mit Süd-Terrasse,
Schlafzimmer, Bad sowie einen großzügigen offenen Wohn-Ess-
Kochbereich eignet sich bestens für Familien und Paare, die
einen Ort zum Entspannen und Wohlfühlen suchen! Der große
Garten steht dem jeweiligen Eigentümer zur alleinigen Nutzung
zur Verfügung.
Natürlich bietet das Projekt Carportstellplätze sowie
Außenstellplätze im Außenbereich. Zudem verfügt jede
Wohnung über ein eigenes Kellerabteil.
KFW 40 QNG Standard:
Die Bauausführung erfüllt alle Kriterien der aktuellen EnEV in
KfW40 QNG Energieeffizienzklasse und unterstreicht mit ihrer
thermischen Gebäudehülle die
Ausstattung
Terrasse, Garten, Keller, Fahrstuhl, Einbauküche, Barrierefrei, Parkett, Fliesen
Bemerkungen:
Moderne & gehobene Ausstattung:
+ Moderne Bauweise und hochwertige Ausstattung nach KfW 40
NH Effizienzhaus Standard
+ Wärmedämmende Ziegel
+ Einbauküche
+ PV-Anlage mit 10 Kwp
+ Traumhafte Dachterrassen mit freier Aussicht (Alpenpanorama)
+ EG-Wohnungen mit Terrassen sowie Gartenanlage
+ Großzügige Balkone als Loggia
+ Je Mehrfamilienhaus ein Aufzug
+ Energiesparendes Heizen durch Pelletheizungen
+ Wohnungen größtenteils barrierefrei
+ Hochwertige Echtholz-Parkettböden / Moderne Fliesen
+ Individuell regulierbare Fußbodenheizung für ein angenehmes
Gefühl von Wohnkomfort
+ Bodengleiche Duschen & Design Badausstattung
+ Teilweise mit Gäste-Wc
+ Alu-Kunststoff-Fenster außen anthrazit/innen weiß (3-fach
isolierverglast)
+ Elektrisch bedienbare Rollläden und Raffstore
+ Dezentrale Wohnraumlüftung mit Wärmerückgewinnung
+ Carportstellplätze
+ Außenstellplätze
Je Wohnung 1 Kellerabteil
Grundriss

Lage
Wohnen & Leben in Bad Griesbach In unverbaubarer Bestlage mit traumhaftem Ausblick und unweit vom Stadtzentrum Bad Griesbach gelegen, entstehen vier Mehrfamilienhäuser mit insgesamt 44 Wohneinheiten der besonderen und modernen Art. 360-Grad Rundgang: https://bayernarealwohnbau.viewin360.co/share/collection/7bQ6L?logo=bWVkaWEvNTQxNTIyLzY2ZTQtMDI1Ni00MTViLWYxOTIucG5n&info=0&logosize=160&fs=1&vr=1&sd=1&thumbs=1&inst=de Infrastruktur (im Umkreis von 5 km): Apotheke, Allgemeinmediziner, Kindergarten, Grundschule, Realschule, Öffentliche Verkehrsmittel
Sonstiges
Heizungsart: Fußbodenheizung
Energieträger: Holzpellets
Makleranfragen nicht erwünscht. Nach § 7 UWG sind unaufgeforderte Kontaktaufnahmen durch Makler ohne ausdrückliche Einwilligung des Empfängers verboten!
ohne-makler (OM) ist weder Anbieter noch Vermittler der Immobilie. OM betreibt eine Plattform für Immobilieneigentümer, die unter anderem die gleichzeitige Veröffentlichung einzelner Inserate auf mehreren Immobilienportalen ermöglicht. Die Inhalte dieser Inserate werden ausschließlich von Dritten verantwortet. Für die Richtigkeit, Vollständigkeit oder Rechtmäßigkeit der Angaben übernimmt OM keine Haftung. Hinweise auf mögliche Rechtsverstöße können jederzeit gemeldet werden und werden nach Prüfung umgehend bearbeitet.
Private:r Anbieter:in
Maximilian Neumaier
Exposé-ID: 29386751 | Referenz-ID: 357021
Ähnliche Immobilien
Wie auf allen Online-Portalen kann es auch bei meinestadt.de in Einzelfällen passieren, dass gefälschte Anzeigen ausgespielt werden. Trotz umfangreicher Bemühungen lässt sich das leider nicht vollständig vermeiden. Lies hier unsere Sicherheitshinweise zum Thema Immobilienbetrug und erfahre, woran du solche Anzeigen erkennst, wie du dich vor Betrugsversuchen schützt und wie du dich im Betrugsfall verhältst. Bitte beachte, dass meinestadt.de und immowelt.de nicht für die Inhalte der Inserate verantwortlich sind und im Schadensfall nicht haften.

Jetzt noch schneller sein
Neue Immobilien? Du erfährst es zuerst!
Die meinestadt.de App benachrichtigt dich sofort per Push-Mitteilung, wenn neue Immobilien eingestellt wurden, die zu deiner Suche passen. App jetzt downloadenServices für die Immobiliensuche
Weitere Wohnungstypen
Weitere Wohnungstypen
Besonders Wohnformen:
Umgebungsinfos