


Online seit: 05.11.2025
Exclusives Penthouse mit Panorama/Elbblick
Breite Straße 116, 22767 Hamburg799.000 €
Kaufpreis
2.0
Zimmer
90 m²
Wohnfläche
Ausstattung & Merkmale
Balkon / TerrasseKellerEinbaukücheGarage / StellplatzPersonenaufzugGarten/-mitbenutzungprovisionsfrei
Eckdaten
| Kaufpreis: | 799.000 € |
| Hausgeld: | 400 € |
| Provision: | provisionsfrei |
Beschreibung
Das Penthouse ist mit einer hochwertigen und luxuriösen Einrichtung im Gesamtwert von ca. 40.000 € ausgestattet, die nur wenige Jahre alt und neuwertig ist. Dazu zählen vollautomatische, lichtundurchlässige Plissees mit integrierter Sprachsteuerung (ca. 10.000 €), eine hochwertige Keramik-Küche mit Glasfront und Markeneinbaugeräten, ein vernetztes Smart-Lichtsystem sowie berührungslose Infrarot-Wasserhähne für maximalen Komfort und Hygiene
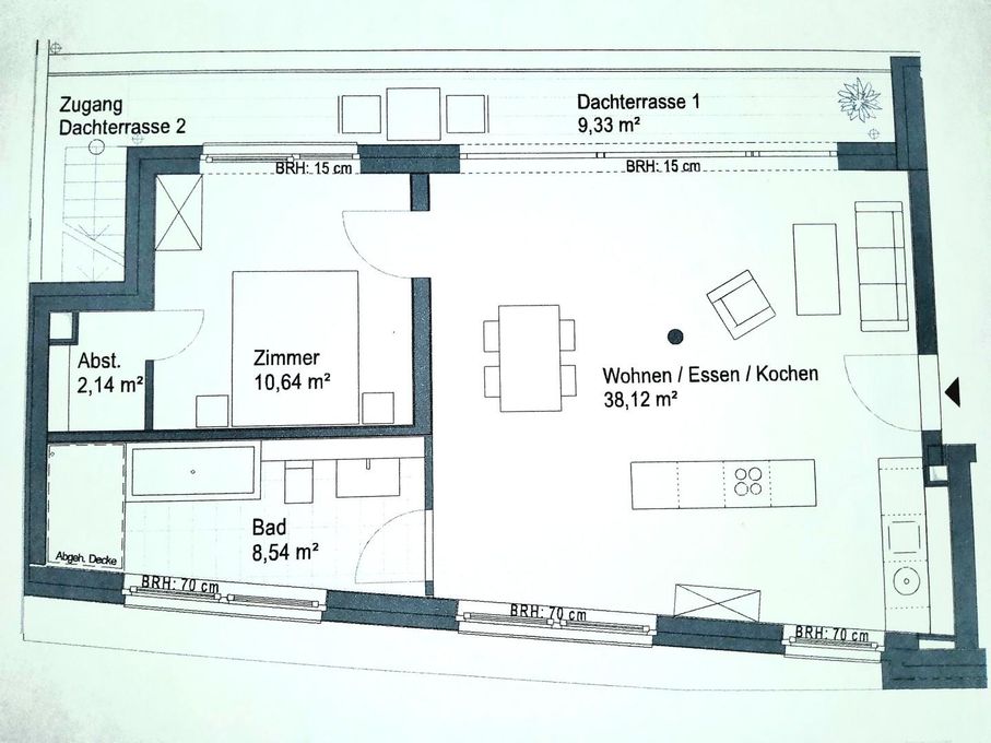
Die Terrassenfläche wird gemäß geltender Berechnungsverordnung aufgrund ihrer Beschaffenheit, Ausstattung, Lage, Aussicht und Sonneneinstrahlung zu 50 % in die Wohnfläche einbezogen.
Von dem zur Wohnung gehörenden Stellplatz gelangen Sie komfortabel mit dem Aufzug direkt in das 5. Obergeschoss. Das moderne Gebäude ist erst wenige Jahre alt. Das zugehörige Penthouse verfügt über eine hochwertige und gepflegte Ausstattung. Das Highlight der Wohnung ist jedoch die großzügige Dachterrasse mit über 50 m² Fläche. Sie ist optimal geschnitten und bietet einen Atemberaubenden Panoramablick über die Stadt Hamburg und die umliegenden Gewässer.
Ausstattung
Balkon, Terrasse, Garten, Keller, Dachterrasse, Fahrstuhl, Duschbad, Einbauküche, Parkett, Fliesen
Bemerkungen:
-Parkett Fußboden mit Fußbodenheizung
-Hochwertige Keramik Küche mit Glasfront und
Einbaugeräten / Weinkühler
-Elektrische Plissees
Grundriss

Lage
Die Reeperbahn, der Hamburger Hafen, der Fischmarkt, das Einkaufszentrum Altona sowie verschiedene Restaurants, Cafés und Konditoreien befinden sich in fußläufiger Entfernung und bieten eine ausgezeichnete Infrastruktur im direkten Umfeld. Infrastruktur (im Umkreis von 5 km): Apotheke, Lebensmittel-Discount, Allgemeinmediziner, Kindergarten, Grundschule, Hauptschule, Realschule, Gymnasium, Gesamtschule, Öffentliche Verkehrsmittel
Sonstiges
Heizungsart: Zentralheizung
Energieträger: Gas
Makleranfragen nicht erwünscht. Nach § 7 UWG sind unaufgeforderte Kontaktaufnahmen durch Makler ohne ausdrückliche Einwilligung des Empfängers verboten!
ohne-makler (OM) ist weder Anbieter noch Vermittler der Immobilie. OM betreibt eine Plattform für Immobilieneigentümer, die unter anderem die gleichzeitige Veröffentlichung einzelner Inserate auf mehreren Immobilienportalen ermöglicht. Die Inhalte dieser Inserate werden ausschließlich von Dritten verantwortet. Für die Richtigkeit, Vollständigkeit oder Rechtmäßigkeit der Angaben übernimmt OM keine Haftung. Hinweise auf mögliche Rechtsverstöße können jederzeit gemeldet werden und werden nach Prüfung umgehend bearbeitet.
Private:r Anbieter:in
Luisa Tumpak
- Telefonisch (Mobil): 01516 2652741
Exposé-ID: 29460773 | Referenz-ID: 243991
Ähnliche Immobilien
Wie auf allen Online-Portalen kann es auch bei meinestadt.de in Einzelfällen passieren, dass gefälschte Anzeigen ausgespielt werden. Trotz umfangreicher Bemühungen lässt sich das leider nicht vollständig vermeiden. Lies hier unsere Sicherheitshinweise zum Thema Immobilienbetrug und erfahre, woran du solche Anzeigen erkennst, wie du dich vor Betrugsversuchen schützt und wie du dich im Betrugsfall verhältst. Bitte beachte, dass meinestadt.de und immowelt.de nicht für die Inhalte der Inserate verantwortlich sind und im Schadensfall nicht haften.

Jetzt noch schneller sein
Neue Immobilien? Du erfährst es zuerst!
Die meinestadt.de App benachrichtigt dich sofort per Push-Mitteilung, wenn neue Immobilien eingestellt wurden, die zu deiner Suche passen. App jetzt downloadenServices für die Immobiliensuche
Weitere Eigentumswohnungen in der Umgebung
Weitere Wohnungen zum Kauf
Weitere Wohnungen zum Kauf
Häuser zum Kauf
Umgebungsinfos










