


Online seit: 24.04.2024
Haus in ländlicher Lage mit Alpenblick am Auerberg im Allgäu
87675 Stötten a. Auerberg569.000 €
Kaufpreis
8.0
Zimmer
229 m²
Wohnfläche
516 m²
Grundstücksfläche
Ausstattung & Merkmale
Balkon / TerrasseGäste WCKellerEinbaukücheKabel TVFahrradraumGarten/-mitbenutzung
Eckdaten
| Kaufpreis: | 569.000 € |
| Käufercourtage: | 2,98 % Käuferprovision inkl. gesetzl. MwSt. |
Beschreibung
Dieses schöne Haus befindet sich in Hofen bei Stötten am Auerberg und bietet Ihnen über 2 Etagen plus Dachgeschoss genügend Platz für die ganze Familie.
Es ist wie folgt aufgeteilt.
Erdgeschoss mit 61,70 m²
1 Schlafzimmer, 1 großer Wohn- Essbereich mit Terrassenausgang und modernisiertem Bad mit ebenerdiger Dusche
Zusätzlich 2 Kellerräume und ein Technikraum mit Heizung
Obergeschoss mit 100,05 m²
2 Schlafzimmer, 1 Wohnzimmer, große Wohnküche, großzügiger Süd-Balkon, Gäste-WC, Badezimmer mit Dusche und Badewanne, Hauswirtschaftsraum
Dachgeschoss mit 67,86 m²:
2 Schlafzimmer, 1 Wohnzimmer, große Wohnküche, großzügiger Süd-Balkon, Gäste-WC, Badezimmer mit Dusche und Badewanne, Hauswirtschaftsraum
Das Haus kann im Obergeschoss und Erdgeschoss sofort übernommen werden. Das Dachgeschoss ist aktuell gut vermietet. Die Wohnung im Obergeschoss befindet sich in einem renovierungsbedürftigen Zustand. Das Erdgeschoss wurde kürzlich erst renoviert und auf den aktuellen Stand gebracht.
Neugierig geworden? Wir freuen uns auf Ihre Kontaktaufnahme!
Ausstattung
- 3 separate Wohnungen
(DG Wohnung aktuell vermietet, EG und OG leerstehend)
- 2 Garagenstellplätze
- 1 Außenstellplatz
- 2 Balkone mit Bergsicht
- kl. Garten
- neue Fenster im EG
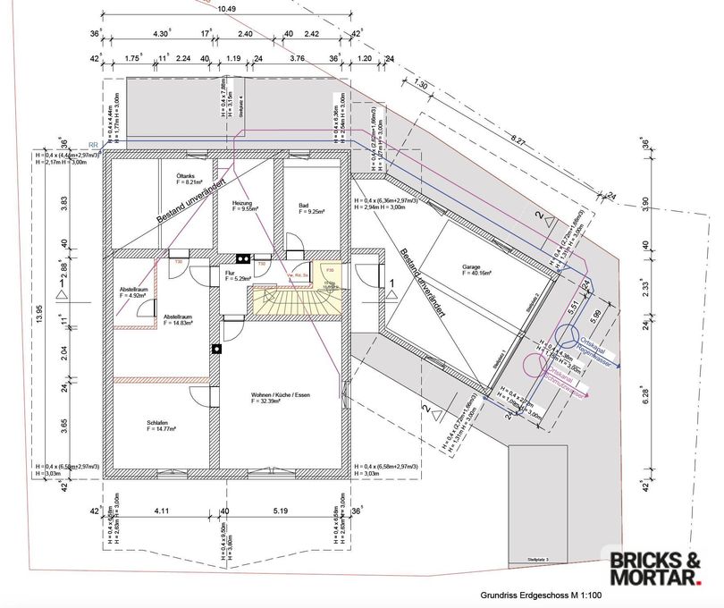
Grundriss

Lage
Stötten am Auerberg, ein charmanter Ort, eingebettet in die herrliche Landschaft des Allgäus! Dein neues Zuhause bietet nicht nur einen Rückzugsort von der Hektik des Alltags, sondern auch eine wunderbare Anbindung und Nähe zu zahlreichen Annehmlichkeiten. Eine neue Einkaufsmöglichkeit im neuen V-Markt steht Ihnen direkt im Ort bald zur Verfügung. Eine sehr gute Anbindung nach Marktoberdorf oder Füssen ist über die ausgebaute B16 mit dem eigenen Fahrzeug oder einem öffentlichen Bus gewährleistet.
Sonstiges
Tipp-Provision!!
Sie kennen jemanden, der seine Immobilie veräußern möchte? Wir sind ständig für unsere Kunden auf der Suche nach geeigneten Objekten. Bei erfolgreicher Vermittlung und Vertragsabschluss zahlen wir Ihnen als Dankeschön eine Tipp-Provision! Nähere Informationen auf Anfrage.
Gerne sind wir für weitere Fragen und Informationen unter
Tel.: +49 (0)151 54671358 erreichbar.
Bei Kauf verpflichtet sich der Käufer an die Bricks & Mortar Immobilien Allgäu GmbH eine Maklerprovision in der angegebenen Höhe nach notariellem Kaufvertrag zu leisten.
Durch Ihre Objektanfrage bestätigen Sie die Vereinbarung und Anerkennung dieser Maklercourtage. Alle Angaben stammen vom Eigentümer, der Makler übernimmt hierfür keine Haftung. Wir bereiten die Objekte nach bestem Wissen und Gewissen für Sie auf.
Anfragen über die Immobilienportale werden nur mit vollständiger Adresse und Telefonnummer bearbeitet.
HAFTUNGSAUSSCHLUSS: Trotz regelmäßiger Prüfung von Daten, Bildern und Informationen übernehmen wir keine Haftung für die Richtigkeit der Angaben. Ebenso wenig für die Verfügbarkeit des Angebotes bei Vermietung oder Verkauf.
Es gelten unsere Allgemeinen Geschäftsbedingungen.

Bricks & Mortar Immobilien Allgäu GmbH
Herr Matthias Grosam
Impressum- Telefonisch (Festnetz): +49 151 546 713 58
- Telefonisch (Mobil): +49 151 546 713 58
Exposé-ID: 5037043 | Referenz-ID: MG-086-KH
Ähnliche Immobilien
Wie auf allen Online-Portalen kann es auch bei meinestadt.de in Einzelfällen passieren, dass gefälschte Anzeigen ausgespielt werden. Trotz umfangreicher Bemühungen lässt sich das leider nicht vollständig vermeiden. Lies hier unsere Sicherheitshinweise zum Thema Immobilienbetrug und erfahre, woran du solche Anzeigen erkennst, wie du dich vor Betrugsversuchen schützt und wie du dich im Betrugsfall verhältst. Bitte beachte, dass meinestadt.de und immowelt.de nicht für die Inhalte der Inserate verantwortlich sind und im Schadensfall nicht haften.

Jetzt noch schneller sein
Neue Immobilien? Du erfährst es zuerst!
Die meinestadt.de App benachrichtigt dich sofort per Push-Mitteilung, wenn neue Immobilien eingestellt wurden, die zu deiner Suche passen. App jetzt downloadenServices für die Immobiliensuche
Weitere Häuser zum Kauf
Weitere Häuser zum Kauf
Wohnungen zum Kauf
Umgebungsinfos










