


Online seit: 31.05.2024
+++Attraktive 3-Zimmer-Terrassenwohnung mit TG-Stellplatz – Ideal für Familien und Investoren+++
73734 Esslingen am NeckarAusstattung & Merkmale
Eckdaten
Kaufpreis: | 269.000 € |
Hausgeld: | 411 € |
Stellplatzkaufpreis: | 14.000 € |
Käufercourtage: | 3,57% |
Beschreibung
Ausstattung
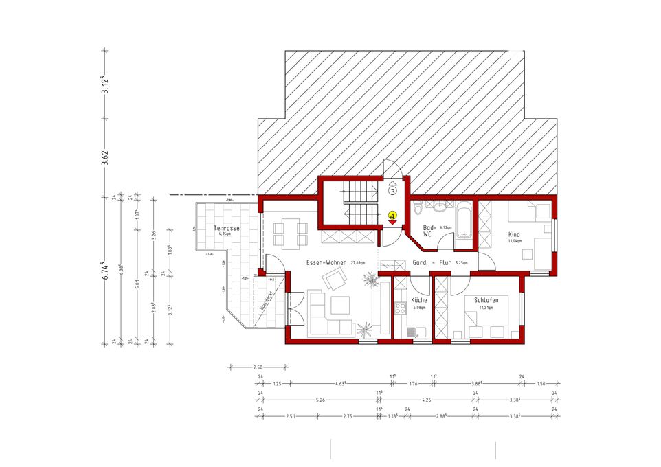
Grundriss

Lage
Die Terrassenwohnung befindet sich in einem ruhigen Stadtteil von Esslingen am Neckar. Dieser Stadtteil zeichnet sich durch seine grünen Wohngebiete und die Nähe zum Neckar aus. In unmittelbarer Umgebung finden sich zahlreiche Einkaufsmöglichkeiten, Restaurants und Schulen. Der Stadtteil ist gut an das öffentliche Verkehrsnetz angebunden und bietet eine gute Anbindung an die Autobahn. Esslingen am Neckar ist eine charmante Stadt in Baden-Württemberg mit einer malerischen Altstadt, historischen Fachwerkhäusern und einer lebendigen Kulturszene. Die Stadt bietet eine Vielzahl von Freizeitmöglichkeiten, darunter Museen, Parks und Veranstaltungen. Esslingen zeichnet sich zudem durch eine gute Infrastruktur und eine hohe Lebensqualität aus. Die Region um Esslingen besticht durch ihre landschaftliche Vielfalt und ihre Nähe zur Natur. Sie bietet zahlreiche Möglichkeiten für Outdoor-Aktivitäten wie Wandern, Radfahren und Wassersport. Die Weinberge und malerischen Dörfer laden zu Ausflügen und Entdeckungen ein. Die regionale Küche mit ihren Spezialitäten rundet das Angebot ab und macht die Gegend zu einem attraktiven Wohnort.
Sonstiges
Exposé-ID: 8324824 | Referenz-ID: 147404661#JJK1rv
Ähnliche Immobilien
