


Online seit: 09.09.2025
Haus-im-Haus-Konzept mit Garten, Terrassen, Doppelgarage, Einliegerbereich, Feldrandlage & Fernblick
61267 Neu-AnspachAusstattung & Merkmale
Eckdaten
| Kaufpreis: | 579.000 € |
| Hausgeld: | 150 € |
| Käufercourtage: | Käuferprovision beträgt 3,57 % (inkl. MwSt.) des beurkundeten Kaufpreises |
Beschreibung
Ausstattung
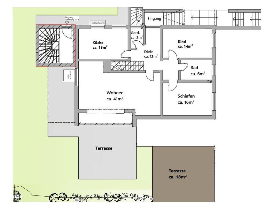
Grundriss

Lage
Die Stadt Neu-Anspach befindet sich im Naturpark Hochtaunus und gliedert sich in die 4 Stadtteile Anspach, Rod am Berg, Westerfeld und Hausen-Arnsbach. Neu-Anspach genießt direkte Anbindung an die Kurstadt Bad Homburg, wie auch in die Rhein-Main-Metropole Frankfurt am Main. Hier hat man die Natur und alle damit verbundenen Freizeitmöglichkeiten vor der Haustür und muss gleichzeitig auf keinerlei Annehmlichkeiten verzichten. Die Infrastruktur lässt keine Wünsche offen. Ein kleines Einkaufcenter ist fußläufig erreichbar. Darüber hinaus existieren in Neu-Anspach auch Bäcker und Metzger, die noch echtes Handwerk betreiben. Zahlreiche Landwirte in der Umgebung verfügen über eigene Hofläden mit frischem Obst und Gemüse aus der Region. Ärzte, Apotheken, Schulen und Kindergärten und sogar ein eigenes Kino sind in Neu-Anspach vorhanden. Es gibt zahlreiche Sportvereine und das Waldschwimmbad mit seiner großzügigen Fläche bietet im Sommer einen idyllischen Aufenthalt. Das Römerkastell Saalburg, der Freizeitpark Lochmühle und der Hessenpark sind außergewöhnliche Ausflugsziele in der Nachbarschaft, die Groß und Klein Spaß machen. Mehrere Reiterhöfe, der Golfclub im westlichen Nachbarort Weilrod, der Segelflugplatz im östlich angrenzenden Wehrheim sowie abwechslungsreiche Lauf- und Radstrecken lassen den Sport zum Erlebnis in traumhafter Naturlage werden. Neu-Anspach verfügt über eine Bahnverbindung (Taunusbahn) nach Friedrichsdorf (ca. 16 Minuten), Bad Homburg (ca. 25 Minuten) und Frankfurt (ca. 50 Minuten). Die knapp 30km entfernte Frankfurter Innenstadt erreichen Sie über die A5 oder A661 in nur einer halben Stunde Fahrzeit. In etwa 25 Fahrminuten erreicht man zudem Bad Camberg mit der Auffahrt zur A3.
Sonstiges
VON POLL IMMOBILIEN Hochtaunus
VON POLL IMMOBILIEN Shop Hochtaunus
Impressum- Telefonisch (Festnetz): 004960819653020
- Fax: 0049608196530211
Exposé-ID: 29316519 | Referenz-ID: 25 141 025a
Ähnliche Immobilien











