


Online seit: 08.10.2025
3,5-Zimmer ETW mit großer Dachterrasse, Erstbezug nach Sanierung, inkl. TG-Stellplatz, ohne Courtage
22455 Hamburg425.000 €
Kaufpreis
3.5
Zimmer
100 m²
Wohnfläche
Ausstattung & Merkmale
Balkon / TerrasseKellerEinbaukücheBad mit WannePersonenaufzugprovisionsfrei
Eckdaten
Kaufpreis: | 425.000 € |
Hausgeld: | 525 € |
Provision: | provisionsfrei |
Beschreibung
Zum Verkauf steht eine umfangreich modernisierte 3,5-Zimmer Eigentumswohnung mit großer Dachterrasse, im schönen Hamburg-Niendorf.
Die erst kürzlich abgeschlossenen Arbeiten umfassten die Neugestaltung der gesamten Wohnung, einschließlich des Bades und der Küche u.A. mit feinverputzten und geschliffenen Wänden, Fliesen im Großformat 60x120 cm und 80x80cm und LED-Deckenspots in Flur und Bad. Die neue und offene Küche ist ausgestattet mit modernen grifflosen Fronten, Geschirrspüler, Induktionskochfeld, Kühl/Gefrier-Kombi uvm.
Zur Wohnung gehört ein Tiefgaragenstellplatz welcher bereits im Preis enthalten ist.
Im Hausgeld sind alle gängigen Posten wie Rücklagenbildung, Verwaltergebühr, Heizkosten, sonstige Betriebskosten, sowie in diesem Fall ebenfalls
die Kosten für die Warmwassererzeugung durch die Zentralheizung + das Wasser selbst enthalten.
Das Gebäude aus dem Baujahr 1972 befindet sich in einem gepflegten Zustand, wird von vielen Eigentümern selbst bewohnt und laufend instandgehalten.
Objektzustand: Erstbezug nach Sanierung
Ausstattung
Balkon, Keller, Dachterrasse, Fahrstuhl, Vollbad, Einbauküche
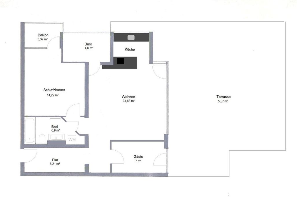
Grundriss

Lage
Die Wohnung befindet im Paul-Sorge-Straße 142b, 22455 Hamburg-Niendorf. Alle Dinge des täglichen Bedarfs finden sich in fußläufiger Entfernung. Auch die Anbindung an den öffentlichen Nahverkehr ist durch die U-Bahn Station U2 Schippelsweg direkt vor der Tür sehr gut.
Sonstiges
Heizungsart: Zentralheizung
Energieträger: Gas
Makleranfragen nicht erwünscht. Nach § 7 UWG sind unaufgeforderte Kontaktaufnahmen durch Makler ohne ausdrückliche Einwilligung des Empfängers verboten!
ohne-makler (OM) ist weder Anbieter noch Vermittler der Immobilie. OM betreibt eine Plattform für Immobilieneigentümer, die unter anderem die gleichzeitige Veröffentlichung einzelner Inserate auf mehreren Immobilienportalen ermöglicht. Die Inhalte dieser Inserate werden ausschließlich von Dritten verantwortet. Für die Richtigkeit, Vollständigkeit oder Rechtmäßigkeit der Angaben übernimmt OM keine Haftung. Hinweise auf mögliche Rechtsverstöße können jederzeit gemeldet werden und werden nach Prüfung umgehend bearbeitet.
Exposé-ID: 29388963 | Referenz-ID: 397340
Ähnliche Immobilien
Wie auf allen Online-Portalen kann es auch bei meinestadt.de in Einzelfällen passieren, dass gefälschte Anzeigen ausgespielt werden. Trotz umfangreicher Bemühungen lässt sich das leider nicht vollständig vermeiden. Lies hier unsere Sicherheitshinweise zum Thema Immobilienbetrug und erfahre, woran du solche Anzeigen erkennst, wie du dich vor Betrugsversuchen schützt und wie du dich im Betrugsfall verhältst. Bitte beachte, dass meinestadt.de und immowelt.de nicht für die Inhalte der Inserate verantwortlich sind und im Schadensfall nicht haften.

Jetzt noch schneller sein
Neue Immobilien? Du erfährst es zuerst!
Die meinestadt.de App benachrichtigt dich sofort per Push-Mitteilung, wenn neue Immobilien eingestellt wurden, die zu deiner Suche passen. App jetzt downloadenServices für die Immobiliensuche
Weitere Eigentumswohnungen in der Umgebung
Weitere Wohnungen zum Kauf
Weitere Wohnungen zum Kauf
Häuser zum Kauf
Umgebungsinfos