


Online seit: 29.10.2025
Barrierefrei & modern - 3 ZKB EG Wohnungen zu vermieten, nur mit Wohnberechtigungsschein
68542 Heddesheim583 €
Kaltmiete
3.0
Zimmer
72 m²
Wohnfläche
Ausstattung & Merkmale
PersonenaufzugKabel TV
Eckdaten
| Kaltmiete: | 583 € | 
| Käufercourtage: | Provisionsfrei | 
| Nebenkosten: | 255,15 € | 
| Kaution: | 1.166 € | 
| Kautionstext: | 2 Monatsmieten | 
Beschreibung
Im attraktiven Neubaugebiet „Mitten im Feld“ in Heddesheim erwartet Sie eine moderne Wohnanlage bestehend aus 4 stilvollen Mehrfamilienhäusern. Aktuell bieten wir mehrere hochwertig ausgestattete Erdgeschosswohnungen im Haus 2 zur Miete an.
Die Wohnungen überzeugen durch zeitgemäßen Wohnkomfort, moderne Ausstattung und erfüllen den aktuellen Stand der Technik. Jede Einheit verfügt über eine eigene Terrasse, ein praktisches Kellerabteil sowie einen Tiefgaragenstellplatz, der bequem über das Treppenhaus oder einen Außenfahrstuhl erreichbar ist.
Bei den angebotenen Wohnungen handelt es sich um 3-ZKB Wohnungen mit Terrasse.
Alle Erdgeschosswohnungen sind stufenlos zugänglich und entsprechen den Anforderungen an barrierefreies Wohnen gemäß §35 Abs. 1 LBO BW und DIN 18040-2 (ohne R).
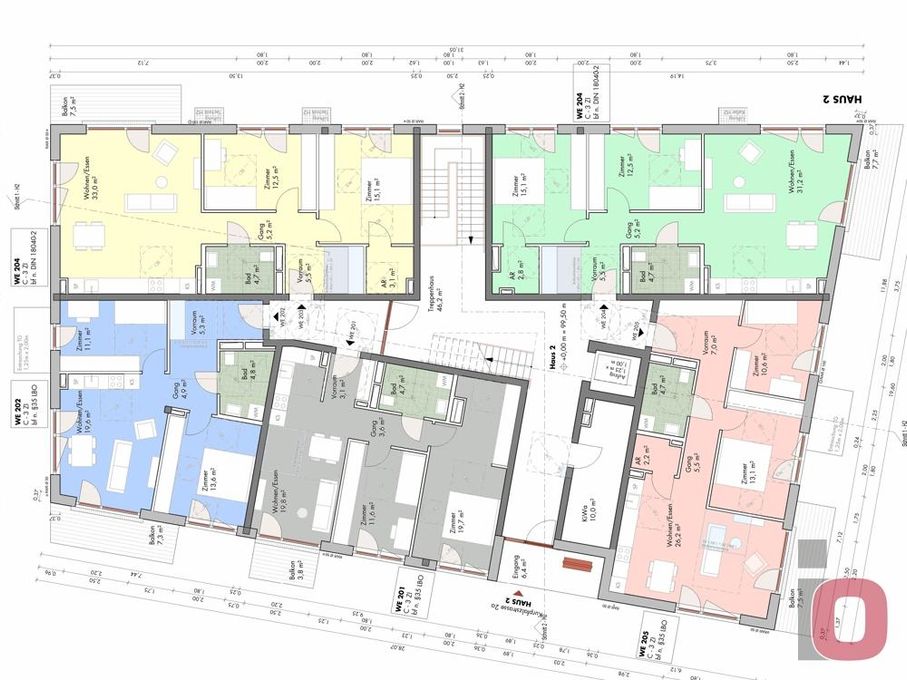
Verfügbare Wohnungen im Überblick:
•Grundriss Gelb: 3-ZKB, ca. 82,70 m², Terrasse Miete: 662€ zzgl. 289,45€ Nebenkosten
•Grundriss Grün: 3-ZKB, ca. 80,80 m², Terrasse Miete: 646€ zzgl. 282,80€ Nebenkosten
•Grundriss Blau: 3-ZKB, ca. 62,80 m², Terrasse Miete: 503€ zzgl. 219,80€ Nebenkosten
•Grundriss Grau: 3-ZKB, ca. 64,30 m², Terrasse Miete: 515€ zzgl. 225,05€ Nebenkosten
•Grundriss Rot: 3-ZKB, ca. 72,90 m², Terrasse Miete: 583€ zzgl. 255,15€ Nebenkosten
Ein Tiefgaragenstellplatz ist jeder Wohnung zugeordnet, die monatliche Miete beträgt 50 €.
Wichtiger Hinweis:
Für diese Wohnungen ist ein gültiger Wohnberechtigungsschein (WBS) erforderlich. Eine Anmietung ist nur mit Vorlage eines WBS möglich.
Wir freuen uns auf Ihre Anfrage und bitten Sie, uns Ihren Wohnberechtigungsschein bei Interesse vorab zukommen zu lassen.
Ausstattung
- schöne Ausstattungsdetails und ausgesuchte Materialien prägen ein behagliches Wohnambiente
- gemeinschaftliche Grünflächen, ein Kinderspielplatz
- Neubau energieeffizient Standard 55 (EE)
- Fenster-Terrassen-Balkontüren mit 3-fach-Verglasung
- Wohnungseingangstüren mit Sicherheitsschloss, dreifach verriegelnd
- hochwertige Bodenbeläge
- Badausstattung mit Qualitätsprodukten
- High Speed Internet (Glasfaser) und CAT7 Netzwerkverkabelung
- Kinderwagenstellplatz im EG
- Kellerabteil
- Tiefgarage
- Fahrstuhl
Grundriss

Lage
Das Neubaugebiet „Mitten im Feld“ liegt am ruhigen Ortsrand von Heddesheim und verbindet naturnahes Wohnen mit guter Infrastruktur. Umgeben von Feldern und Grünflächen bietet die Lage Erholung und Einkaufsmöglichkeiten direkt vor der Haustür. Gleichzeitig sind Schulen, Kitas und der öffentliche Nahverkehr schnell erreichbar. Die Anbindung an die Metropolregion Rhein-Neckar ist ideal – Mannheim, Heidelberg und Weinheim sind nur wenige Autominuten entfernt.
Sonstiges
Alle Angaben sind ohne Gewähr und basieren ausschließlich auf Informationen, die uns von unserem Auftraggeber, sowie von sonstigen Dritten zur Verfügung gestellt wurden. Wir übernehmen keine Gewähr für die Vollständigkeit, Richtigkeit und Aktualität dieser Angaben. Alle Immobilienangebote sind freibleibend und vorbehaltlich Irrtümer, Zwischenverkauf- und Vermietung oder sonstiger Zwischenverwertung.
Es gelten unsere allgemeinen Geschäftsbedingungen.
Bitte haben Sie Verständnis, dass eine Bearbeitung Ihrer Anfrage nur mit vollständiger Adressangabe möglich ist.
Im Alleinauftrag zu vermieten !

Immobilien Oehlenschläger
Herr Markus Oehlenschläger
Impressum- Telefonisch (Festnetz): 00496204919099 
- Fax: 00496204912849 
Exposé-ID: 29445151 | Referenz-ID: 002277
Ähnliche Immobilien
 Wie auf allen Online-Portalen kann es auch bei meinestadt.de in Einzelfällen passieren, dass gefälschte Anzeigen ausgespielt werden. Trotz umfangreicher Bemühungen lässt sich das leider nicht vollständig vermeiden. Lies hier unsere Sicherheitshinweise zum Thema Immobilienbetrug und erfahre, woran du solche Anzeigen erkennst, wie du dich vor Betrugsversuchen schützt und wie du dich im Betrugsfall verhältst. Bitte beachte, dass meinestadt.de und immowelt.de nicht für die Inhalte der Inserate verantwortlich sind und im Schadensfall nicht haften. 

Jetzt noch schneller sein
Neue Immobilien? Du erfährst es zuerst!
Die meinestadt.de App benachrichtigt dich sofort per Push-Mitteilung, wenn neue Immobilien eingestellt wurden, die zu deiner Suche passen. App jetzt downloadenServices für die Immobiliensuche
Weitere Wohnungstypen
Weitere Wohnungstypen
Besonders Wohnformen:
Umgebungsinfos









