


Online seit: 04.11.2025
Gepflegte 4-Zimmer-Wohnung in Roitzsch
Ernst-Thälmann-Straße 50, 06809 Roitzsch570 €
Kaltmiete
4.0
Zimmer
75 m²
Wohnfläche
Ausstattung & Merkmale
KellerEinbaukücheBad mit WanneGarten/-mitbenutzungprovisionsfrei
Eckdaten
| Kaltmiete: | 570 € |
| Heizkosten in Nebenkosten enthalten: | Nein |
| Heizkosten: | 100 € |
| Provision: | provisionsfrei |
| Nebenkosten: | 110 € |
| Kaution: | 1.710 € |
Beschreibung
Das Mehrfamilienhaus in Roitzsch beinhaltet insgesamt sechs individuelle Wohneinheiten, jeweils mit eigenem Kellerabteil. Ein gemeinschaftlicher Garten steht allen Bewohnern zur Verfügung, um eine angenehme Umgebung zu bieten.
Ausstattung
Garten, Keller, Vollbad, Einbauküche
Bemerkungen:
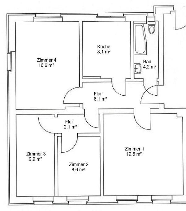
Die Wohneinheit bietet einen großzügigen Flur, Wohnzimmer, drei Schlafzimmer, eine Küche und ein Badezimmer mit Badewanne und Tageslichtfenster. Ein trockenes Kellerabteil ist vorhanden. Die Wohnung wird im frisch gestrichenen Zustand übergeben. Die Einbauküche kann gegen eine Abstandszahlung vom Vormieter übernommen werden.
Grundriss

Lage
In Roitzsch, einem Ort zwischen Brehna und Bitterfeld-Wolfen, finden Sie eine attraktive 4-Raum-Wohnung. Die Lage ist vorteilhaft für Shopping-Liebhaber, da das Brehnaer Outlet in kurzer Entfernung erreichbar ist. Die Autobahn ist nur 5 Minuten entfernt, während sowohl die S-Bahn (5 Min. zu Fuß) als auch die Regionalbahn (10 Min. zu Fuß) ausgezeichnete Anbindungsmöglichkeiten bieten. Diese Wohnung eignet sich ideal für Pendler und alle, die Flexibilität schätzen. Infrastruktur (im Umkreis von 5 km): Apotheke, Lebensmittel-Discount, Allgemeinmediziner, Kindergarten, Grundschule, Realschule, Öffentliche Verkehrsmittel
Sonstiges
Heizungsart: Zentralheizung
Energieträger: Gas
Impressum:
VP Grundwerte GmbH
Kommandantenstraße 7
12205 Berlin
Makleranfragen nicht erwünscht. Nach § 7 UWG sind unaufgeforderte Kontaktaufnahmen durch Makler ohne ausdrückliche Einwilligung des Empfängers verboten!
ohne-makler (OM) ist weder Anbieter noch Vermittler der Immobilie. OM betreibt eine Plattform für Immobilieneigentümer, die unter anderem die gleichzeitige Veröffentlichung einzelner Inserate auf mehreren Immobilienportalen ermöglicht. Die Inhalte dieser Inserate werden ausschließlich von Dritten verantwortet. Für die Richtigkeit, Vollständigkeit oder Rechtmäßigkeit der Angaben übernimmt OM keine Haftung. Hinweise auf mögliche Rechtsverstöße können jederzeit gemeldet werden und werden nach Prüfung umgehend bearbeitet.
Exposé-ID: 29456069 | Referenz-ID: 285372
Ähnliche Immobilien
Wie auf allen Online-Portalen kann es auch bei meinestadt.de in Einzelfällen passieren, dass gefälschte Anzeigen ausgespielt werden. Trotz umfangreicher Bemühungen lässt sich das leider nicht vollständig vermeiden. Lies hier unsere Sicherheitshinweise zum Thema Immobilienbetrug und erfahre, woran du solche Anzeigen erkennst, wie du dich vor Betrugsversuchen schützt und wie du dich im Betrugsfall verhältst. Bitte beachte, dass meinestadt.de und immowelt.de nicht für die Inhalte der Inserate verantwortlich sind und im Schadensfall nicht haften.

Jetzt noch schneller sein
Neue Immobilien? Du erfährst es zuerst!
Die meinestadt.de App benachrichtigt dich sofort per Push-Mitteilung, wenn neue Immobilien eingestellt wurden, die zu deiner Suche passen. App jetzt downloadenServices für die Immobiliensuche
Weitere Wohnungstypen
Weitere Wohnungstypen
Besonders Wohnformen:
Umgebungsinfos










