


Online seit: 07.11.2025
3-Zimmer-Wohnung mit Balkon in ruhiger Lage von Stuttgart-West - Sanierungsobjekt mit Potenzial
70176 Stuttgart-West220.000 €
Kaufpreis
3.0
Zimmer
68 m²
Wohnfläche
Ausstattung & Merkmale
Balkon / TerrassePersonenaufzug
Eckdaten
| Kaufpreis: | 220.000 € |
| Hausgeld: | 378,94 € |
| Käufercourtage: | 3,57 % inkl. MwSt. bezogen auf den beurkundeten Kaufpreis |
Beschreibung
* Etagenwohnung im 2. Obergeschoss eines Mehrfamilienhauses von 1961
* Ca. 68 m² Wohnfläche verteilt auf drei Zimmer
* Ruhiger Balkon mit Süd-Südost-Ausrichtung
* Separater Zugang über Laubengang
* Gebäude mit insgesamt 33 Wohneinheiten
* Helle Räume mit funktionaler Grundrissstruktur
* Sofort bezugsfrei – freie Gestaltung möglich
* Erbpacht bis 2058, jährlicher Zins: 237,24 €
Ausstattung
* Sanierungsbedürftiger Zustand
* Teppichboden in Wohn- und Schlafräumen, Estrich darunter
* PVC-Belag in Küche und Flur
* Kunststofffenster mit Doppelverglasung aus dem Jahr 2007
* Fernwärme-Zentralheizung mit Heizkörpern
* Bad mit Wanne, Waschbecken, WC und Boiler
* Küche leer – Anschlüsse vorhanden
* Zwei Abstellräume (Keller und Dachbühne)
* Personenaufzug im Gebäude
* Gegensprechanlage und Kabelanschluss vorhanden
* Waschküche und Trockenraum vorhanden
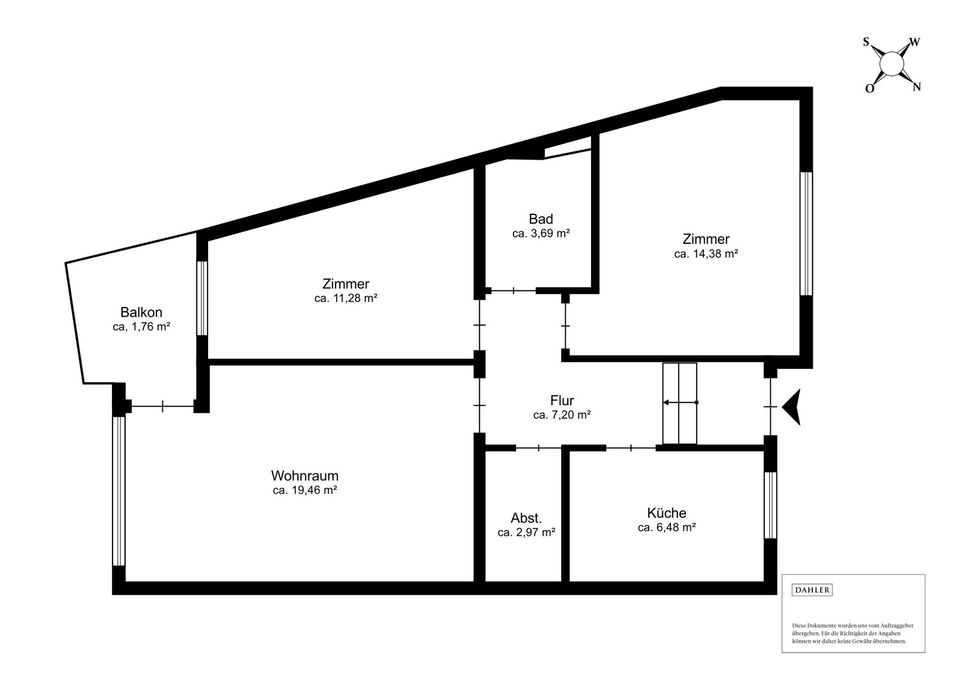
Grundriss

Lage
* Zentrale Lage in Stuttgart-West, Silberburgstraße * Nähe Hölderlinplatz mit urbanem Flair * U2, U4, U9 sowie Buslinien 40, 41, 43, 92 fußläufig erreichbar * S-Bahn-Station Feuersee in der Nähe * Ca. 10 Minuten zum Hbf Stuttgart, 30 Minuten zum Flughafen * Zahlreiche Cafés, Restaurants und Geschäfte in Laufweite * Schulen und Kitas gut erreichbar * Gepflegte Wohnstraße mit nachbarschaftlichem Umfeld * Nähe zu Grünanlagen und Erholungsflächen * Sehr gute Infrastruktur und Wohnqualität
Sonstiges
Nähere Informationen zur Immobilie finden Sie in unserem ausführlichen Exposé mit digitalem 360° Rundgang der gesamten Immobilie, welche wir Ihnen gern auf Anfrage unter Angabe Ihrer Kontaktdaten zusenden.
Alle Angaben beruhen auf Auskünften des Eigentümers bzw. Verkäufers. Wir können daher keine Gewähr für die Richtigkeit der Verkäuferangaben übernehmen. Sollten Sie Vorkenntnis über die hier angebotene Kaufgelegenheit haben, ist uns dies mitzuteilen.
DAHLER Stuttgart hat mit dem Eigentümer/Verkäufer dieser Immobilie einen Vertrag in gleicher Provisionshöhe abgeschlossen.
Weitere Immobilien in der Region finden Sie unter https://www.dahler.com/stuttgart
Sie wollen Ihre Immobilie Stuttgart verkaufen? Hier können Sie diese kostenlos schätzen lassen: https://dahler.com/stuttgart-verkauf

DAHLER Stuttgart Finest Real Estate
Frau L.-M. Dietl
Impressum- Telefonisch (Festnetz): 004971118424731
- Fax: 004971118424721
Exposé-ID: 29469089 | Referenz-ID: DC-STR251649
Ähnliche Immobilien
Wie auf allen Online-Portalen kann es auch bei meinestadt.de in Einzelfällen passieren, dass gefälschte Anzeigen ausgespielt werden. Trotz umfangreicher Bemühungen lässt sich das leider nicht vollständig vermeiden. Lies hier unsere Sicherheitshinweise zum Thema Immobilienbetrug und erfahre, woran du solche Anzeigen erkennst, wie du dich vor Betrugsversuchen schützt und wie du dich im Betrugsfall verhältst. Bitte beachte, dass meinestadt.de und immowelt.de nicht für die Inhalte der Inserate verantwortlich sind und im Schadensfall nicht haften.

Jetzt noch schneller sein
Neue Immobilien? Du erfährst es zuerst!
Die meinestadt.de App benachrichtigt dich sofort per Push-Mitteilung, wenn neue Immobilien eingestellt wurden, die zu deiner Suche passen. App jetzt downloadenServices für die Immobiliensuche
Weitere Eigentumswohnungen in der Umgebung
Weitere Wohnungen zum Kauf
Weitere Wohnungen zum Kauf
Häuser zum Kauf
Umgebungsinfos










