


Online seit: 22.11.2025
Apartment in Gründerzeitvilla im Grünen Erdgeschoss Nr. 1
53757 Sankt Augustin670 €
Kaltmiete
2.0
Zimmer
52 m²
Wohnfläche
Ausstattung & Merkmale
Balkon / TerrasseEinbaukücheGarage / StellplatzGarten/-mitbenutzungDenkmalobjektprovisionsfrei
Eckdaten
| Kaltmiete: | 670 € |
| Heizkosten in Nebenkosten enthalten: | Nein |
| Heizkosten: | 100 € |
| Provision: | provisionsfrei |
| Nebenkosten: | 70 € |
| Kaution: | 1.680 € |
Beschreibung
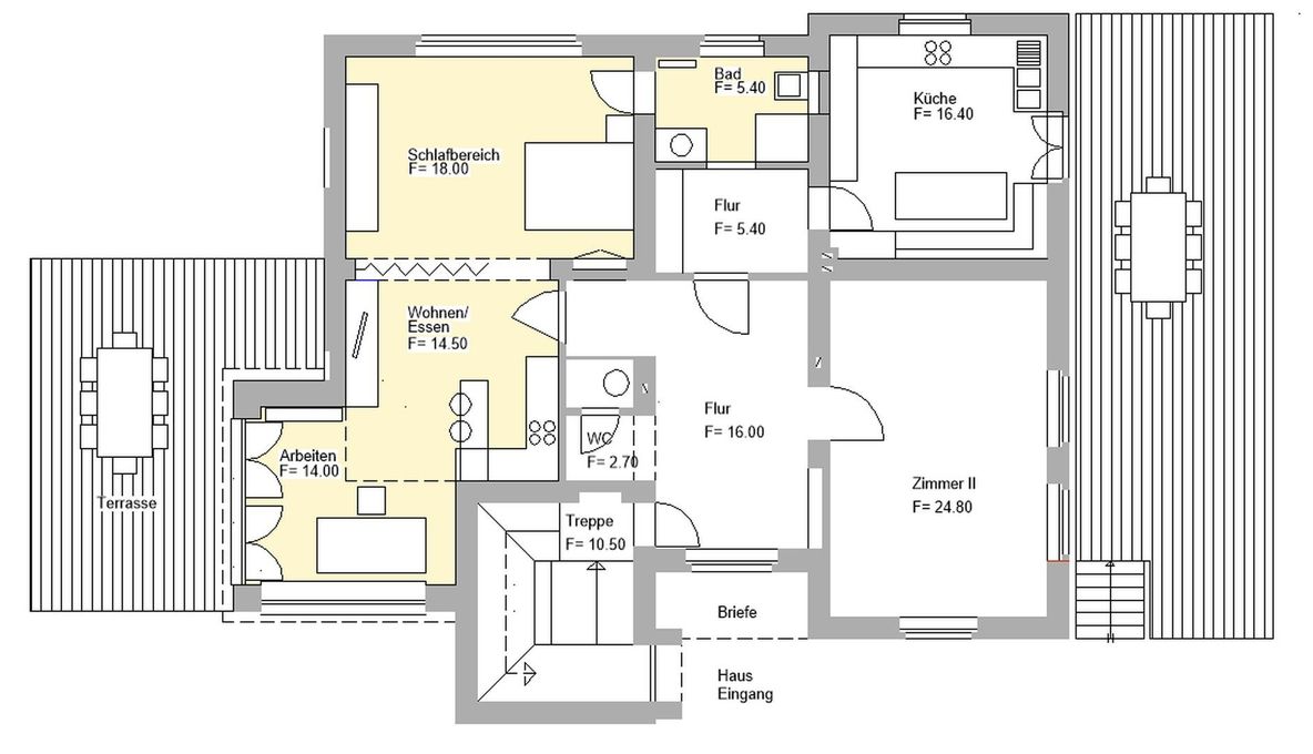
Single Apartment mit einer offenen Raumfolge aus drei Bereichen mit einem Wintergarten mit Arbeitsplatz/Wohnzimmer, Einbauküche, Essbereich, Schlafbereich, Bad und Terrasse. Die anderen drei Etagen im Haus sind als Wohnungen für Wohngemeinschaften vermietet mit in der Regel jungen Menschen und Menschen mittleren Alters.
Das renovierte Haus aus der Gründerzeit 1905 liegt in einer großen Parkanlage mit freien PKW Plätzen, ländlich, am Stadtrand im Naturpark Siebengebirge mit sehr guter Anbindung mit ÖPNV und PKW,
Lage am Birlinghovener Wald mit Schloss Birlinghoven.
Die Wohnung ist für mehr als eine Person zum täglichen Gebrauch nicht geeignet.
Ausstattung
Balkon, Terrasse, Garten, Duschbad, Einbauküche, Parkett, Fliesen
Bemerkungen:
Teilmöbliert, Einbauküche, Internetzugang Grundausstattung, Dreifachverglasung, Rollläden an allen Fenstern.
Anmerkung: Die in den Bildern dargestellte Möblierung gehört zum großen Teil dem Mieter.
Grundriss

Lage
Pleistalstr. 123, Sankt Augustin- Birlinghoven/Niederpleis, Bushaltestelle "Am Pleistalwerk" unmittelbar vor dem Haus, Bonn Zentrum 15 Min. mit PKW, per Bahn 35 Min., ICE Bahnhof Siegburg ca. 10 Min. Bus, PKW 5 Min., Flugplatz Köln- Bonn 15 Min., Innenstadt Köln 20 Min., Fraunhofer Gesellschaft Schloss Birlinghoven 5 min Fahrrad, Hochschule Bonn Rhein Sieg Sankt Augustin Markt 10 min Bus, PKW oder Fahrrad, Uni Bonn 45 min ja nach Lage. Infrastruktur (im Umkreis von 5 km): Apotheke, Lebensmittel-Discount, Allgemeinmediziner, Kindergarten, Grundschule, Hauptschule, Realschule, Gymnasium, Gesamtschule, Öffentliche Verkehrsmittel
Sonstiges
Heizungsart: Zentralheizung
Energieträger: Holzpellets
Alle Nebenkosten incl. Gartenpflege, Internet, Energie und Wärme werden als Pauschale abgerechnet.
Makleranfragen nicht erwünscht. Nach § 7 UWG sind unaufgeforderte Kontaktaufnahmen durch Makler ohne ausdrückliche Einwilligung des Empfängers verboten!
ohne-makler (OM) ist weder Anbieter noch Vermittler der Immobilie. OM betreibt eine Plattform für Immobilieneigentümer, die unter anderem die gleichzeitige Veröffentlichung einzelner Inserate auf mehreren Immobilienportalen ermöglicht. Die Inhalte dieser Inserate werden ausschließlich von Dritten verantwortet. Für die Richtigkeit, Vollständigkeit oder Rechtmäßigkeit der Angaben übernimmt OM keine Haftung. Hinweise auf mögliche Rechtsverstöße können jederzeit gemeldet werden und werden nach Prüfung umgehend bearbeitet.
Private:r Anbieter:in
Heinrich Geerling
Exposé-ID: 29503099 | Referenz-ID: 230867
Ähnliche Immobilien
Wie auf allen Online-Portalen kann es auch bei meinestadt.de in Einzelfällen passieren, dass gefälschte Anzeigen ausgespielt werden. Trotz umfangreicher Bemühungen lässt sich das leider nicht vollständig vermeiden. Lies hier unsere Sicherheitshinweise zum Thema Immobilienbetrug und erfahre, woran du solche Anzeigen erkennst, wie du dich vor Betrugsversuchen schützt und wie du dich im Betrugsfall verhältst. Bitte beachte, dass meinestadt.de und immowelt.de nicht für die Inhalte der Inserate verantwortlich sind und im Schadensfall nicht haften.

Jetzt noch schneller sein
Neue Immobilien? Du erfährst es zuerst!
Die meinestadt.de App benachrichtigt dich sofort per Push-Mitteilung, wenn neue Immobilien eingestellt wurden, die zu deiner Suche passen. App jetzt downloadenServices für die Immobiliensuche
Weitere Wohnungen in der Umgebung
Weitere Wohnungstypen
Weitere Wohnungstypen
Besonders Wohnformen:
Umgebungsinfos









