


Online seit: 04.12.2025
Schöne neu renovierte 2-Zimmer-Wohnung in Göttingen
Rosdorfer Weg 35, 37073 Göttingen624 €
Kaltmiete
2.0
Zimmer
48 m²
Wohnfläche
Ausstattung & Merkmale
KellerGarten/-mitbenutzungprovisionsfrei
Eckdaten
| Kaltmiete: | 624 € |
| Heizkosten in Nebenkosten enthalten: | Nein |
| Heizkosten: | 60 € |
| Provision: | provisionsfrei |
| Nebenkosten: | 90 € |
| Kaution: | 1.872 € |
Beschreibung
Entdecken Sie Ihr neues Zuhause in dieser Wohnung. Wir vermieten hier eine helle und freundliche 2-Zimmer-Wohnung im ersten Obergeschoß eines Mehrfamilienhauses mit sechs Wohnparteien. Die gut geschnittenen Räume bieten ausreichend Platz für individuelle Wohnideen und laden zum Wohlfühlen ein. Die Küche ist mit einer kleines Küchenzeile ausgestattet. Die Wohnung ist renoviert und es ein neuer Laminatfußboden wurde verlegt. Der kleine Garten zur Allgemeinnutzung lädt zu erholsamen Stunden im Freien ein.
Haben wir Ihr Interesse geweckt? Gerne laden wir Sie zu einem Besichtigungstermin ein. Wir freuen uns auf Ihre Anfrage!
Ausstattung
Garten, Keller, Laminat
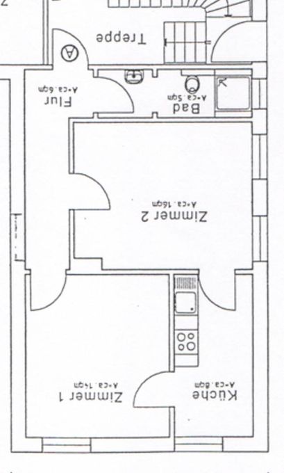
Grundriss

Lage
Das Mehrfamilienhaus liegt nur 1 Kilometer süd-westlich der Innenstadt von Göttingen entfernt. Das Zentrum und die Universität sind somit sehr gut zu erreichen. Die Nahverkehrsanbindungen sind gut und die Fernbahn ist auch fußläufig gut erreichbar. In unmittelbarer Nähe befindet sich ein Lebensmittelmarkt und die umliegenden Grünflächen und Parks laden zum Erholen ein. Infrastruktur (im Umkreis von 5 km): Apotheke, Lebensmittel-Discount, Allgemeinmediziner, Öffentliche Verkehrsmittel
Sonstiges
Heizungsart: Zentralheizung
Energieträger: Gas
Makleranfragen nicht erwünscht. Nach § 7 UWG sind unaufgeforderte Kontaktaufnahmen durch Makler ohne ausdrückliche Einwilligung des Empfängers verboten!
ohne-makler (OM) ist weder Anbieter noch Vermittler der Immobilie. OM betreibt eine Plattform für Immobilieneigentümer, die unter anderem die gleichzeitige Veröffentlichung einzelner Inserate auf mehreren Immobilienportalen ermöglicht. Die Inhalte dieser Inserate werden ausschließlich von Dritten verantwortet. Für die Richtigkeit, Vollständigkeit oder Rechtmäßigkeit der Angaben übernimmt OM keine Haftung. Hinweise auf mögliche Rechtsverstöße können jederzeit gemeldet werden und werden nach Prüfung umgehend bearbeitet.
Private:r Anbieter:in
Nadine Danewitz
Exposé-ID: 29525586 | Referenz-ID: 412022
Ähnliche Immobilien
Wie auf allen Online-Portalen kann es auch bei meinestadt.de in Einzelfällen passieren, dass gefälschte Anzeigen ausgespielt werden. Trotz umfangreicher Bemühungen lässt sich das leider nicht vollständig vermeiden. Lies hier unsere Sicherheitshinweise zum Thema Immobilienbetrug und erfahre, woran du solche Anzeigen erkennst, wie du dich vor Betrugsversuchen schützt und wie du dich im Betrugsfall verhältst. Bitte beachte, dass meinestadt.de und immowelt.de nicht für die Inhalte der Inserate verantwortlich sind und im Schadensfall nicht haften.

Jetzt noch schneller sein
Neue Immobilien? Du erfährst es zuerst!
Die meinestadt.de App benachrichtigt dich sofort per Push-Mitteilung, wenn neue Immobilien eingestellt wurden, die zu deiner Suche passen. App jetzt downloadenServices für die Immobiliensuche
Weitere Wohnungstypen
Weitere Wohnungstypen
Besonders Wohnformen:
Umgebungsinfos










