


Online seit: 24.04.2024
Businesspark Willicher Damm (M)EINE ca. 229 m² flexible Büroeinheit
Willicher Damm 135, 41066 Mönchengladbach / UeddingEckdaten
| Kaltmiete: | 1.832 € |
| Käufercourtage: | Provisionsfrei |
Beschreibung
Ausstattung
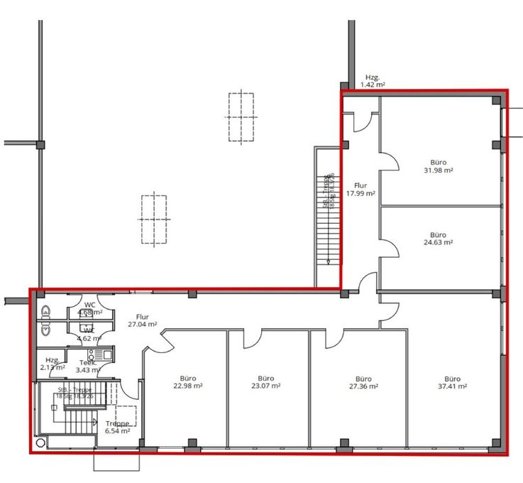
Grundriss

Lage
Der Businesspark Willicher Damm mit einer Gesamtfläche von ca. 24.444 m² hat prominente Nachbarschaft. Autohäuser, Fastfoodketten, Supermärkte oder der Neubau des Polizeipräsidiums bieten Ihnen Synergien und Netzwerke. Mönchengladbach-Nord mit eigenen Autobahnabfahrten liegt zwischen Düsseldorf, Köln, Krefeld und den Beneluxländern. Die Bundesautobahnen A44, A52, A3 und die regionalen Verkehrsnetze erreichen Sie in unter 5 Minuten Fahrzeit: | • | Entfernungen | • | Flughafen Mönchengladbach 1 Kilometer Hauptbahnhof Mönchengladbach 3 Kilometer Krefeld 14 Kilometer Düsseldorf 20 Kilometer Düsseldorf Airport 21 Kilometer Duisburger Hafen 30 Kilometer Venlo / Niederlande 25 Kilometer
Sonstiges

Ansgar Mertens Immobilien & Finanzierungsvermittlung
Herr Ansgar Mertens
Impressum- Telefonisch (Festnetz): 02161-5498030
- Telefonisch (Mobil): 0152-59502045
Exposé-ID: 5039717 | Referenz-ID: 335
Mit unserem kostenlosen Suchauftrag erhältst du die neuesten Angebote per E-Mail. Hast du bereits passende Immobilienangebote gefunden, die du vergleichen möchtest, nutze unsere Merkliste. Weitere Informationen zum Datenschutz findest du hier.






