


Online seit: 18.03.2025
Raumwunder: Unser Generationenhaus mit Einliegerwohnung
96194 Walsdorf1.430.000 €
Kaufpreis
6.0
Zimmer
225 m²
Wohnfläche
800 m²
Grundstücksfläche
Eckdaten
Kaufpreis: | 1.430.000 € |
Beschreibung
Bei dem hier abgebildeten Haus handelt es sich um ein projektiertes Haus bei welchem Sie selbstverständlich Ihre individuellen Wünsche und Bedürfnisse in die Planung mit einfließen lassen können.
So können der Grundriss und der Haustyp im Rahmen der Bauvorschriften frei gestaltet werden und der Lieferumfang individuell auf Ihre Wünsche angepasst werden.
Der Angebotspreis gilt für dieses OKAL Haus (gem. Bau- und Leistungsbeschreibung). inkl. fast fertigen Innenausbau (Malervorbereitet) und dem Kaufpreis für Ihr Grundstück. Das Grundstücksangebot (Verkauf/Vermittlung) erfolgt direkt vom Eigentümer oder über einen kooperierenden Makler gem. §34cGewO. Baunebenkosten wie z.B. Erdarbeiten, Außenanlagen, Anschlusskosten Versorger etc. sind im Hauspreis nicht enthalten.
Durch KURZE BAUZEITEN und FESTPREISGARANTIE (22 Monate) sind die Kosten für jedermann überschaubar.
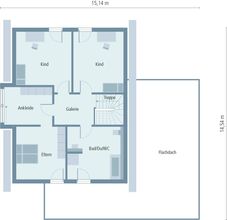
Das Satteldachhaus mit XL-Grundriss bietet vor allem eins: Freiraum! An das geräumige Haupthaus ist parterre die separate Zwei-Zimmer-Wohnung angegliedert. Beide Wohneinheiten im Erdgeschoss wirken dank bodentiefer Fenster und Schiebetüren einladend groß und hell.
In der Eltern-Suite im Dachgeschoss verbindet die Ankleide Schlafraum und Badezimmer. Kinder oder Gäste finden hier ebenfalls ihren Platz. Und auch auf Büro und zusätzliches Duschbad muss nicht verzichtet werden. So geht wohnen!
Ausstattung
Das angebotene Haus wird fast fertig ausgebaut, in der Stufe Malervorbereitet geliefert.
Lediglich der Kauf und die Anbringung der Maler-/und Tapeziermaterialien sowie die Bodenbeläge erfolgen in Eigenleistung. Auf Wunsch können wir Ihnen für Ihr Haus auch die Ausbaustufe Einzugsfertig inkl. Bauendreinigung anbieten.
Alle OKAL Häuser übertreffen die Vorgabe der Energieeinsparverordnung für Neubauten. Und jedes unserer Häuser hat bereits eine umfassende Ausstattung, in der schon viele Extras im Hauspreis enthalten sind.
- Architektenleistung inkl. Bauantragserstellung, Statik-/ und Wärmeschutzberechnung
- Bodengutachten
- Bodenplatte inkl. Sockeldämmung
- 2,80 m Raumhöhe
- Innentüren inkl. Zargen
- Sanitärobjekte
- Frischluftwärmetechnik PROXON
- Dämm- und Beplankungspaket
- Heizungsanlage und Elektropak
- Haustechnik inkl. Rohrleistungen
- Echtholztreppe
- Bauherren Sicherheitspaket
- 3-fach verglaste Fenster
- Elektrische ALUMINIUM- Rollläden
- Blower-Door-Test
- KfW-Effizienzhaus 55
- Nachweislich gesundes Bauen: TÜV-Siegel "Toxproof"
- Bauendreinigung vor Hausübergabe (nur bei Ausbaustufe Einzugsfertig)
Die auf den Bildern gezeigten Inneneinrichtungen sind Beispiele. Die Innenausstattung legen Sie individuell in der Bemusterung (Bemusterungszentrum) fest.
Faire Zahlungsbedingungen: KEINE Anzahlungen - Zahlen erst nach erbrachter Leistung!
Lage
Nähere Informationen erhalten Sie per Anfrage bzw. in einem unverbindlichen Beratungsgespräch. Bitte beachten Sie, dass das angegebene Grundstück nicht im Preis enthalten ist und lediglich als Beispiel dient. Falls Sie bereits ein passendes Grundstück reserviert oder gekauft haben, wird Ihr individuelles Traumhaus von uns darauf geplant und kalkuliert. Falls Sie noch kein Grundstück besitzen, unterstützen wir Sie gern dabei, ein geeignetes Grundstück zu finden.
Sonstiges
Die Baunebenkosten, wie zum Beispiel Grunderwerbskosten, Notar, Hausanschlüsse, behördliche Gebühren oder Finanzierungskosten sind nicht im Gesamtpreis enthalten.
Die Abbildungen zeigen zum Teil Sonderausstattungen. Flächenangaben nach DIN 277.
Änderungen des Preises oder der Ausstattungen sowie Irrtümer oder Zwischenverkauf sind vorbehalten.
Es gilt die jeweilige Baubeschreibung und Preisliste des Anbieters. Für Angaben von Dritten, Eigentümern und/oder Behörden kann keine Gewähr übernommen werden.
Hinweis zu den gesetzlichen Pflichtangaben gemäß der EnEV 2014: Das hier angebotene Haus ist ein Neubauprojekt und es liegt daher noch kein Energieausweis vor. Dieser wird Ihnen spätestens im Rahmen der Erstellung des Objektes ausgehändigt

OKAL Haus GmbH
Frau Sharon Wunderlich
Impressum- Telefonisch (Festnetz): +49 160 7926385
- Telefonisch (Mobil): +49 160 7926385
Exposé-ID: 23948454 | Referenz-ID: SW-BA-17032025-11
Ähnliche Immobilien
Wie auf allen Online-Portalen kann es auch bei meinestadt.de in Einzelfällen passieren, dass gefälschte Anzeigen ausgespielt werden. Trotz umfangreicher Bemühungen lässt sich das leider nicht vollständig vermeiden. Lies hier unsere Sicherheitshinweise zum Thema Immobilienbetrug und erfahre, woran du solche Anzeigen erkennst, wie du dich vor Betrugsversuchen schützt und wie du dich im Betrugsfall verhältst. Bitte beachte, dass meinestadt.de und immowelt.de nicht für die Inhalte der Inserate verantwortlich sind und im Schadensfall nicht haften.

Jetzt noch schneller sein
Neue Immobilien? Du erfährst es zuerst!
Die meinestadt.de App benachrichtigt dich sofort per Push-Mitteilung, wenn neue Immobilien eingestellt wurden, die zu deiner Suche passen. App jetzt downloadenServices für die Immobiliensuche
Weitere Häuser zum Kauf
Weitere Häuser zum Kauf
Wohnungen zum Kauf
Umgebungsinfos