


Online seit: 09.08.2025
Einfamilienhaus mit viel Platz und ca. 223 m² Wohnflächen-Ausbaupotential nahe IN-Stadtmitte
85057 IngolstadtAusstattung & Merkmale
Eckdaten
| Kaufpreis: | 659.000 € |
| Käufercourtage: | 3,57 % (inkl. MwSt.) |
Beschreibung
Ausstattung
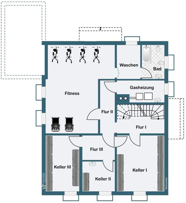
Grundriss

Lage
Die Immobilie liegt in zentraler Wohnlage nahe dem nördlichen Grüngürtel, nur wenige Gehminuten von der Innenstadt entfernt. Ein großer Vorteil ist die Erreichbarkeit der Audi AG in Fahrradreichweite, sowie eine Bushaltestelle, die sich in nur 100 Meter Entfernung zum Objekt befindet. Außerdem stehen alle notwendige Einkaufsmöglichkeiten wie Supermärkte, Ärzte oder auch Apotheken im nahen Umfeld zur Verfügung. Das an der Donau gelegene Ingolstadt mit aktuell ca. 140.000 Einwohnern bietet hohen und modernen Wohnkomfort inmitten der Wirtschaftsregion München / Nürnberg. Selbst ein wichtiger Standort der Automobilindustrie und vieler Zulieferunternehmen verfügt die kreisfreie Stadt mit Autobahn- und ICE-Anschluss über eine perfekte Verkehrsanbindung. Weitläufige Parks, Grünanlagen und viele Sportmöglichkeiten sorgen für den Erholungsfaktor der Stadt. Über die Region hinaus bekannt ist Ingolstadt für seine schöne Altstadt, über die sich stadtbildprägend das Liebfrauenmünster erhebt, welches im 14. Jahrhundert im Stil der Spätgotik erbaut wurde. Weitere Sehenswürdigkeiten sind das medizinhistorische Museum, das Kreuztor, das Alte Rathaus sowie das Neue Schloss. Außerdem beherbergt Ingolstadt eine der schönsten Barockkirchen Bayerns: Maria de Victoria, welche besonders für ihr herausragendes Deckenfresko bekannt ist.
Sonstiges
VON POLL IMMOBILIEN Ingolstadt
VON POLL IMMOBILIEN Shop Ingolstadt
Impressum- Telefonisch (Festnetz): 004984199332722
- Fax: 004984199332723
Exposé-ID: 29239678 | Referenz-ID: 25 146 007
Ähnliche Immobilien










