


Online seit: 11.08.2025
Einfamilienhaus im Bäderdreieck Nähe Haarbach/Wolfakirchen
94542 Haarbach360.000 €
Kaufpreis
8.0
Zimmer
210 m²
Wohnfläche
438 m²
Grundstücksfläche
Ausstattung & Merkmale
Gäste WCEinbauküche
Eckdaten
| Kaufpreis: | 360.000 € |
| Käufercourtage: | 3,57 % incl. MwSt. Käufermaklercourtage. |
Beschreibung
Baujahr: nicht genau bekannt, über 100 Jahre alt, Bauweise: Massiv, in Form einer doppelten Ziegelwand, 2 x 24 cm, Zwischendecken: Balkenlager, erneuert, Bedachung: Ziegel, Fenster: Kunststoff, Innentüren: Holz, Haustüre: Kunststoff, Bodenbeläge: Parkett, Fliesen, Treppe: gefliest, Beheizung: Pellets, Bj. 2004, Wohnfläche: ca. 210 m², Grund: ca. 438 m².
Ausstattung
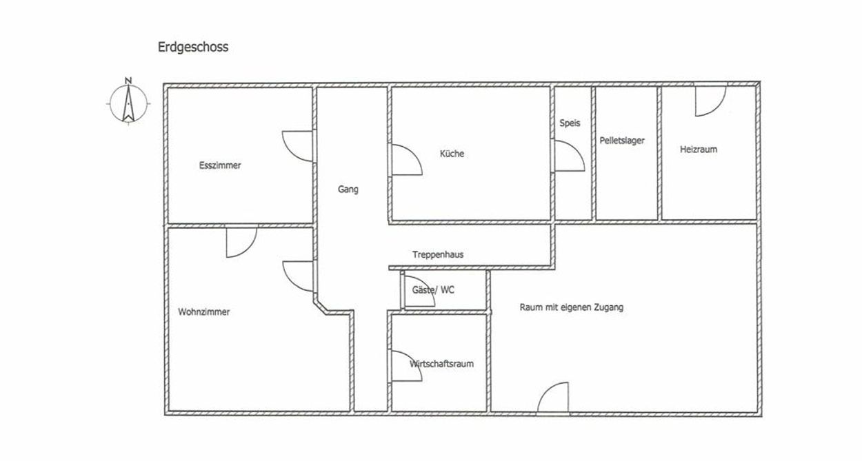
Erdgeschoss: Gästezimmer, sep. Eingang, Abstellraum (für Dusche und WC geeignet, Küchenanschluss möglich, Bodenbelag im Rohzustand), Hauptwohnung: Küche (eingebaut ca. 2005), Speise, Esszimmer, Gäste-WC, Wohnzimmer mit Parkett und Kachelofen, Diele mit Garderobe, Waschküche. Alle Räumlichkeiten hier haben Fußbodenheizung.
Obergeschoss: Schlafzimmer (mit Abstellraum/Ankleide), Dusche/WC, Büro, Bad/Dusche/Bidet/2 Waschbecken, sep. WC (oder Gäste/WC), 4 Kinderzimmer, Diele.
Dachgeschoss: Speicherraum. Das Dach wurde auch nochmals separat isoliert.
Kellergeschoss: die Immobilie ist nicht unterkellert.
Nebengebäude:
Auf dem Grundstück befindet sich eine große Garage, mit der integrierten Pelletheizung und dem Pelletbunker.
Grundstück:
Das Grundstück ist vollkommen ebenerdig gelegen. Die Immobilie wurde bereits an alle Ver-/und Entsorgungsanlagen angeschlossen.
PV-Anlage:
Auf der Immobilie befindet sich eine PV-Anlage mit 9,26 kW Bj. ca. 2011. Die monatlichen Einnahmen betragen ca. 180,- bis 200,-Euro.
Grundriss

Lage
In einer schönen sonnigen Siedlungslage, im Gemeindegebiet Haarbach Nähe Bad Griesbach Ortsteil Wolfakirchen, wird diese Immobilie zum Verkauf angeboten. Versorgungseinrichtungen: Die notwendigen Einkaufs-/und Freizeitmöglichkeiten können sehr gut in der nahe gelegenen Gemeinde Haarbach ca. 3 – 4 km entfernt erledigt werden.
Sonstiges
Die Immobilie steht leer und kann nach Vereinbarung übernommen werden. Die Immobilie selbst wurde komplett renoviert, inkl. der Leitungen für Wasser und Elektronik. Ansonsten befindet sich die Immobilie in einem sehr guten wohnlichen Zustand.
Sanierungsmaßnahmen (2004/2005)
Die Immobilie wurde 2004/2005 umfassend kernsaniert.
Im Zuge der Arbeiten wurden u. a. folgende Maßnahmen durchgeführt:
• Fundament / Bodenplatte vollständig erneuert
• Außenputz als isolierender Leichtputz neu aufgebracht
• Innenputz als atmungsaktiver Kalkputz erneuert
• Wasser- und Abwasserleitungen komplett neu
• Elektrische Anlage (Schaltkasten, Leitungen etc.) vollständig erneuert
• Neuer Innenausbau inklusive Deckenbalken und Mauern
• Decke im Obergeschoss sowie Dachboden komplett isoliert
• Neuer Kachelofen (entspricht aktueller DIN)
• 2011: Installation einer PV-Anlage mit Eigenverbrauch
Energiekennwerte:
Art des vorliegenden Energieausweises: Energieverbrauchsausweis
Endenergieverbrauch: 74,1 kWh/(m²a)
Energieträger: Holzpellets
Baujahr Wohngebäude: 1905, Baujahr Anlagentechnik: 2004
Energieeffizienzklasse: B
Maklercourtage: 3,57 % incl. MwSt. Käufermaklercourtage.
Verkaufspreis: 360.000,00 €
Alle Angaben sind ohne Gewähr und basieren ausschließlich auf Informationen, die uns von unserem Auftraggeber übermittelt wurden. Wir übernehmen keine Gewähr für die Vollständigkeit, Richtigkeit und Aktualität dieser Angaben.

Passauer Immobilien Resch & Söhne GmbH seit 1968
Herr Christian Resch
Impressum- Telefonisch (Festnetz): 00498516739
- Fax: 004985170876
- Telefonisch (Mobil): 00491717252400
Exposé-ID: 29241386 | Referenz-ID: H10364
Ähnliche Immobilien
Wie auf allen Online-Portalen kann es auch bei meinestadt.de in Einzelfällen passieren, dass gefälschte Anzeigen ausgespielt werden. Trotz umfangreicher Bemühungen lässt sich das leider nicht vollständig vermeiden. Lies hier unsere Sicherheitshinweise zum Thema Immobilienbetrug und erfahre, woran du solche Anzeigen erkennst, wie du dich vor Betrugsversuchen schützt und wie du dich im Betrugsfall verhältst. Bitte beachte, dass meinestadt.de und immowelt.de nicht für die Inhalte der Inserate verantwortlich sind und im Schadensfall nicht haften.

Jetzt noch schneller sein
Neue Immobilien? Du erfährst es zuerst!
Die meinestadt.de App benachrichtigt dich sofort per Push-Mitteilung, wenn neue Immobilien eingestellt wurden, die zu deiner Suche passen. App jetzt downloadenServices für die Immobiliensuche
Weitere Häuser zum Kauf
Weitere Häuser zum Kauf
Wohnungen zum Kauf
Umgebungsinfos










