


Online seit: 22.10.2025
Sanierungsbedürftiges Wohn- und Geschäftshaus in Zentraler Lage Freibergs
71691 Freiberg am NeckarAusstattung & Merkmale
Eckdaten
| Kaufpreis: | 439.000 € |
| Käufercourtage: | 4,76 % inkl. gesetzlicher Mehrwertsteuer |
Beschreibung
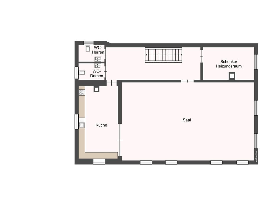
Grundriss

Lage
Zuhause in Freiberg! Freiberg gehört zum Landkreis Ludwigsburg und bietet rund 15.700 Einwohnern ein Zuhause. Der alte Ortskern mit seinen Fachwerkhäusern versprüht den Charme vergangener Tage, für urbanes Flair sorgt die nahegelegene Barockstadt Ludwigsburg. Samstags zieht es Sie für einen Shopping-Bummel ins Breuningerland, die Ludwigsburger oder Stuttgarter Innenstadt, kleinere Besorgungen erledigen Sie direkt im Ort. Auf einem der Hofläden rund um Freiberg versorgen Sie sich mit regionalen Produkten oder genießen einen Mittagssnack. Sonntags erkunden Sie mit Ihrer Familie das Naturschutzgebiet Wiesental oder die Aussicht vom nahegelegenen Schloss Kleiningersheim. Bei einer Weinwanderung oder einem historischen Dorfrundgang lernen Sie die Umgebung noch besser kennen. Auf Veranstaltungen wie dem Bürgerfest treffen Sie nicht nur Ihre Nachbarn, sondern auch Menschen aus den Nachbargemeinden Pleidelsheim, Bietigheim-Bissingen oder Ingersheim. Ihre Kinder besuchen einen der Kindergärten und Grundschulen direkt im Ort oder nutzen den Bus um zu einer der weiterführenden Schulen in den Nachbargemeinden. Ihre Freunde treffen sie im Jugendhaus, im Turn – oder Volleyballverein, beim Tanzclub oder Handball. Einen renommierten Arbeitsplatz finden Sie in einem der namhaften Unternehmen direkt in Freiberg, in Ludwigsburg oder Stuttgart – beispielsweise aus der Automobilindustrie, dem Maschinenbau, der IT oder Elektrotechnik. Ins Büro fahren Sie mit der S-Bahn, alternativ setzen Sie sich ins Auto und sind binnen wenigen Minuten auf der Autobahn A81. Nach Feierabend powern Sie sich bei einer Joggingrunde entlang des Neckars, im Fußball- oder Tennisverein aus. Im Sommer genießen Sie das Naturschutzgebiet Altneckar bei einer Standup-Paddel-Tour oder einem ausgiebigen Spaziergang.
Sonstiges

P Immobilien Beratung GmbH
Herr Birhat Cakir
Impressum- Telefonisch (Festnetz): 00497141936684
- Fax: 00497141902801
- Telefonisch (Mobil): 004915258574023
Exposé-ID: 29422071 | Referenz-ID: 4851
Ähnliche Immobilien











