


Online seit: 26.10.2025
Schöne möblierte 1,5-Zimmer-Wohnung mit Balkon und Küche in gefragter Lage
Riebeckstr. 9, 04317 Leipzig580 €
Kaltmiete
1.5
Zimmer
42 m²
Wohnfläche
Ausstattung & Merkmale
Balkon / TerrasseKellerEinbauküchePersonenaufzugprovisionsfrei
Eckdaten
| Kaltmiete: | 580 € |
| Heizkosten in Nebenkosten enthalten: | Nein |
| Heizkosten: | 50 € |
| Provision: | provisionsfrei |
| Nebenkosten: | 60 € |
| Kaution: | 1.160 € |
Beschreibung
Diese helle und freundliche 1,5-Zimmer-Wohnung aus dem Baujahr 1997 befindet sich in einem sehr gepflegten Zustand und ist komplett möbliert – ideal für alle, die sofort einziehen möchten.
Die Wohnung wird unbefristet mit einer Mindestmietdauer von 1 Jahr vermietet und bietet mit ihrer Energieeffizienzklasse B niedrige Nebenkosten und hohen Wohnkomfort.
Der gemütliche Balkon lädt zum Entspannen mit Blick ins Grüne ein, während die moderne Einbauküche keine Wünsche offenlässt. Das vor vier Jahren komplett sanierte Badezimmer mit ebenerdiger Dusche überzeugt durch zeitgemäßen Standard.
Zur vollständigen Möblierung gehören Bett, Kleiderschrank, Couch, Esstisch mit Stühlen, Balkontisch mit Stühlen, Lampen und Regale, moderner TV – Sie müssen nur noch Ihre persönlichen Dinge mitbringen und können direkt losleben.
Die Wohnung eignet sich perfekt für Singles, Berufspendler oder Studierende, die zentral und naturnah wohnen möchten. Im Haus befindet sich auch betreutes Wohnen der Johanniter, was für ein sicheres und gepflegtes Wohnumfeld sorgt.
Ausstattung
Balkon, Keller, Fahrstuhl, Einbauküche, Laminat, Fliesen
Bemerkungen:
Möblierung:
Bett, Kleiderschrank, Couch, Esstisch mit Stühlen, Balkontisch mit Stühlen, Lampen, Regale, Fernseher
Ausstattung:
- Moderne Einbauküche
- Komplett saniertes Bad mit Dusche (2021)
- Sonniger Balkon
- Kellerraum
- Waschmaschinenraum + Waschmaschinenanschluss in der Küche
- Energieeffizienzklasse B
Mietkonditionen:
Unbefristet | Mindestmietdauer 1 Jahr
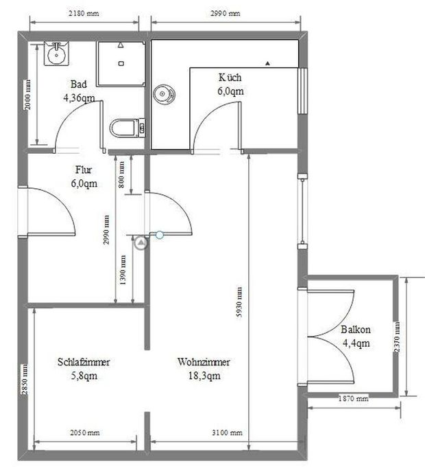
Grundriss

Lage
Top-Lage in Leipzig-Reudnitz, 3 Minuten fußläufig vom Lene-Voigt-Park – der grünen Lunge des Leipziger Ostens. Die Innenstadt ist nur 2 Kilometer entfernt und direkt vor der Tür sind Straßenbahn oder Bus erreichbar. Einkaufsmöglichkeiten, Cafés und Restaurants befinden sich in direkter Nachbarschaft. Reudnitz-Thonberg ist ein lebendiger Stadtteil mit charmanten Altbauten und moderner Infrastruktur – beliebt bei jungen Familien, Studierenden und Berufstätigen. Infrastruktur (im Umkreis von 5 km): Apotheke, Lebensmittel-Discount, Allgemeinmediziner, Kindergarten, Grundschule, Gymnasium, Öffentliche Verkehrsmittel
Sonstiges
Heizungsart: Zentralheizung
Energieträger: Erdwärme
Makleranfragen nicht erwünscht. Nach § 7 UWG sind unaufgeforderte Kontaktaufnahmen durch Makler ohne ausdrückliche Einwilligung des Empfängers verboten!
ohne-makler (OM) ist weder Anbieter noch Vermittler der Immobilie. OM betreibt eine Plattform für Immobilieneigentümer, die unter anderem die gleichzeitige Veröffentlichung einzelner Inserate auf mehreren Immobilienportalen ermöglicht. Die Inhalte dieser Inserate werden ausschließlich von Dritten verantwortet. Für die Richtigkeit, Vollständigkeit oder Rechtmäßigkeit der Angaben übernimmt OM keine Haftung. Hinweise auf mögliche Rechtsverstöße können jederzeit gemeldet werden und werden nach Prüfung umgehend bearbeitet.
Private:r Anbieter:in
Nico
Exposé-ID: 29433849 | Referenz-ID: 402093
Ähnliche Immobilien
Wie auf allen Online-Portalen kann es auch bei meinestadt.de in Einzelfällen passieren, dass gefälschte Anzeigen ausgespielt werden. Trotz umfangreicher Bemühungen lässt sich das leider nicht vollständig vermeiden. Lies hier unsere Sicherheitshinweise zum Thema Immobilienbetrug und erfahre, woran du solche Anzeigen erkennst, wie du dich vor Betrugsversuchen schützt und wie du dich im Betrugsfall verhältst. Bitte beachte, dass meinestadt.de und immowelt.de nicht für die Inhalte der Inserate verantwortlich sind und im Schadensfall nicht haften.

Jetzt noch schneller sein
Neue Immobilien? Du erfährst es zuerst!
Die meinestadt.de App benachrichtigt dich sofort per Push-Mitteilung, wenn neue Immobilien eingestellt wurden, die zu deiner Suche passen. App jetzt downloadenServices für die Immobiliensuche
Weitere Wohnungstypen
Weitere Wohnungstypen
Besonders Wohnformen:
Umgebungsinfos









