


Online seit: 28.10.2025
"Gemütliche 2-Zimmer-Wohnung mit Balkon in Fürth – Ideal zum Selbstbezug oder als Anlage"
90763 FürthAusstattung & Merkmale
Eckdaten
| Kaufpreis: | 119.000 € |
| Hausgeld: | 365 € |
| Käufercourtage: | 3,57 % inkl. MwSt. |
Beschreibung
Ausstattung
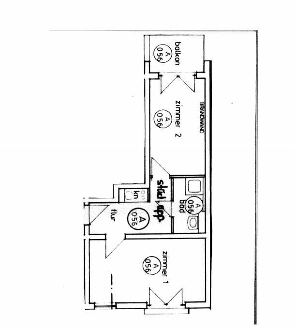
Grundriss

Lage
Diese Immobilie befindet sich in einem lebhaften Wohnviertel von Fürth, das sowohl durch seine zentrale Lage als auch durch die Vielfalt an verfügbaren Annehmlichkeiten überzeugt. Die ruhige Straße strahlt eine einladende Atmosphäre aus und ist von historischen Gebäuden umgeben, die dem Viertel seinen charmanten Charakter verleihen. In unmittelbarer Nähe finden sich zahlreiche Supermärkte, darunter Edeka und ALDI Süd, die bequem zu Fuß erreichbar sind. Auch mehrere Restaurants wie das beliebte Shiva und die Pizzeria Da Francesco bieten vielseitige kulinarische Optionen. Für Familien erweist sich das Wohngebiet mit diversen Spielplätzen und der nahegelegenen Kinderkrippe besonders attraktiv. Die hervorragende Anbindung an den öffentlichen Nahverkehr, mit Bushaltestellen und einem Bahnhof nur wenige Gehminuten entfernt, unterstreicht die Bequemlichkeit dieser Lage. Zusätzlich gelangen Autofahrer rasch zu wichtigen Autobahnen. Der nächstgelegene internationale Flughafen ist etwa 30 Minuten Fahrzeit entfernt, was diese Immobilie auch für Pendler sehr interessant macht. Was die Gesundheitsversorgung angeht, sind sowohl Zahnärzte als auch Ärzte in der Nähe angesiedelt. Apotheken und Drogerien, darunter Rossmann, stehen ebenfalls in Reichweite zur Verfügung. Für sportlich Aktive liegt ein modernes Fitnessstudio in der Nachbarschaft, und die Grünanlagen der Umgebung bieten Möglichkeiten zur Erholung im Freien. Mit einem Durchschnittsalter von rund 40 Jahren und einem geringen Leerstand ist die Gegend sowohl bei jungen Familien als auch bei Paaren und Singles beliebt. Die hohe Dichte an kulturellen und sportlichen Angeboten sowie Freizeitmöglichkeiten spricht eine vielfältige Zielgruppe an, während das dichte Netz an Geschäften des täglichen Bedarfs und Dienstleistern eine ausgezeichnete Versorgung sicherstellt.
Sonstiges
Dokumente
FALC Immobilien
Herr Cono Manzione
Impressum- Telefonisch (Festnetz): +49 911 25323135
- Fax: +49 2242 9010319
- Telefonisch (Mobil): +49 163 6277729
Exposé-ID: 29440179 | Referenz-ID: FALC-CoMa-73124
Ähnliche Immobilien










