


Online seit: 31.10.2025
kernsanierte 3-Zimmer-Altbauwohnung mit Südbalkon & optionaler Einbauküche
Pestalozzistraße 5, 04435 Sckeuditz790 €
Kaltmiete
3.0
Zimmer
84 m²
Wohnfläche
Ausstattung & Merkmale
Balkon / TerrasseKellerEinbaukücheGarage / Stellplatzprovisionsfrei
Eckdaten
| Kaltmiete: | 790 € |
| Heizkosten in Nebenkosten enthalten: | Nein |
| Heizkosten: | 90 € |
| Stellplatzmiete: | 60 € |
| Provision: | provisionsfrei |
| Nebenkosten: | 90 € |
| Kaution: | 1.500 € |
Beschreibung
Diese großzügige 3-Zimmer-Wohnung mit ca. 84 m² befindet sich im 1. Obergeschoss eines gepflegten Altbaus in der Pestalozzistraße 5 in Schkeuditz. Die Wohnung wurde umfassend kernsaniert und verbindet den Charme eines Altbaus mit moderner Ausstattung.
Zu den durchgeführten Arbeiten gehören:
komplett erneuerte Elektrik
neue Fenstergriffe und Thermostate
frisch verlegter Bodenbelag in allen Räumen
neue Wand- und Deckenanstriche
abgeschliffene und neu lackierte Türen
modernisiertes Badezimmer mit neuen Fliesen und Armaturen
Das Herzstück der Wohnung ist der helle Wohnbereich mit Zugang zum Südbalkon, der zum Entspannen einlädt. Auf Wunsch bauen wir eine moderne Einbauküche für die Mieter ein. Die Wohnung ist ideal für Paare, kleine Familien oder Homeoffice-Nutzer, die Wert auf großzügige Räume und ein hochwertiges Wohnumfeld legen.
Objektzustand: Erstbezug nach Sanierung
Ausstattung
Balkon, Keller, Einbauküche, Fliesen
Bemerkungen:
- Erstbezug nach Kernsanierung
- Südbalkon
- modernes Tageslichtbad mit Badewanne
- hochwertige Vinylböden
- großzügiger Grundriss mit drei hellen Zimmern
- Kellerabteil vorhanden
- gepflegtes Altbau-Mehrfamilienhaus
- Einbauküche kann auf Wunsch eingebaut werden
- Die Garate kann bei Bedarf dazugemietet werden
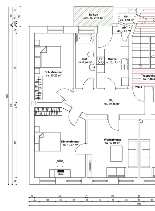
Grundriss

Lage
Die Wohnung liegt in einer ruhigen Seitenstraße in 04435 Schkeuditz, nur wenige Gehminuten vom Markt und von Einkaufsmöglichkeiten entfernt. Ärzte, Schulen, Kindergärten und öffentliche Verkehrsmittel sind bequem erreichbar. Durch die Nähe zur B6, A9 und A14 sowie zum Flughafen Leipzig/Halle ist eine schnelle Anbindung an Leipzig und Halle gegeben.
Sonstiges
Heizungsart: Zentralheizung
Energieträger: Gas
Makleranfragen nicht erwünscht. Nach § 7 UWG sind unaufgeforderte Kontaktaufnahmen durch Makler ohne ausdrückliche Einwilligung des Empfängers verboten!
ohne-makler (OM) ist weder Anbieter noch Vermittler der Immobilie. OM betreibt eine Plattform für Immobilieneigentümer, die unter anderem die gleichzeitige Veröffentlichung einzelner Inserate auf mehreren Immobilienportalen ermöglicht. Die Inhalte dieser Inserate werden ausschließlich von Dritten verantwortet. Für die Richtigkeit, Vollständigkeit oder Rechtmäßigkeit der Angaben übernimmt OM keine Haftung. Hinweise auf mögliche Rechtsverstöße können jederzeit gemeldet werden und werden nach Prüfung umgehend bearbeitet.
Private:r Anbieter:in
Anna Hudalla
Exposé-ID: 29449208 | Referenz-ID: 403312
Ähnliche Immobilien
Wie auf allen Online-Portalen kann es auch bei meinestadt.de in Einzelfällen passieren, dass gefälschte Anzeigen ausgespielt werden. Trotz umfangreicher Bemühungen lässt sich das leider nicht vollständig vermeiden. Lies hier unsere Sicherheitshinweise zum Thema Immobilienbetrug und erfahre, woran du solche Anzeigen erkennst, wie du dich vor Betrugsversuchen schützt und wie du dich im Betrugsfall verhältst. Bitte beachte, dass meinestadt.de und immowelt.de nicht für die Inhalte der Inserate verantwortlich sind und im Schadensfall nicht haften.

Jetzt noch schneller sein
Neue Immobilien? Du erfährst es zuerst!
Die meinestadt.de App benachrichtigt dich sofort per Push-Mitteilung, wenn neue Immobilien eingestellt wurden, die zu deiner Suche passen. App jetzt downloadenServices für die Immobiliensuche
Weitere Wohnungstypen
Weitere Wohnungstypen
Besonders Wohnformen:
Umgebungsinfos








