


Online seit: 04.11.2025
Sonnige Dachgeschosswohnung über dem Herzen der Stadt
42579 HeiligenhausAusstattung & Merkmale
Eckdaten
| Kaltmiete: | 615 € |
| Heizkosten in Nebenkosten enthalten: | Nein |
| Heizkosten: | 198 € |
| Provision: | provisionsfrei |
| Nebenkosten: | 139 € |
| Kaution: | 1.845 € |
Beschreibung
Ausstattung
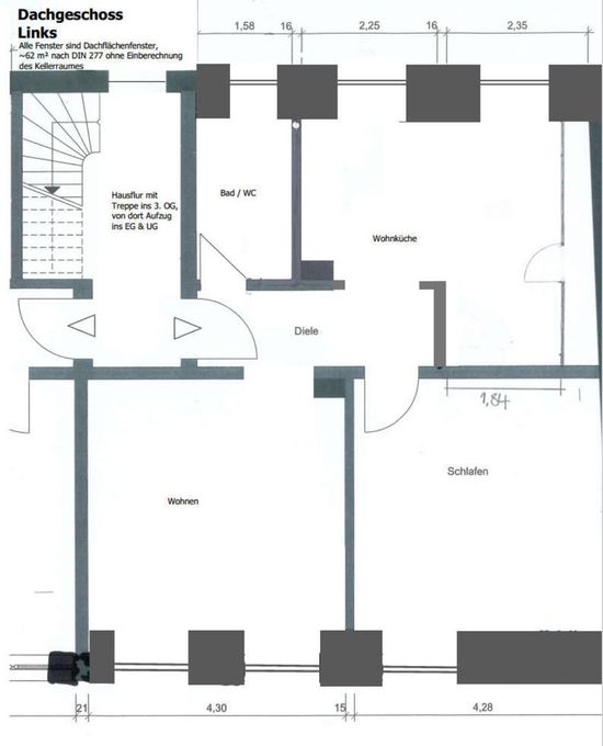
Grundriss

Lage
Direkt im Stadtzentrum von Heiligenhaus am Rathausplatz - mehr mittendrin geht nicht! Kurze Wege zu allem, was Sie täglich brauchen: Innerhalb von 5 Gehminuten erreichen Sie 3 Supermärkte, Drogerien, Apotheken, Ärzte, Bekleidungsgeschäfte, Sparkasse, etc. Cafés und Restaurants laden zum Verweilen ein und der Panoramaradweg ist auch in unter 5 Minuten erreicht. Mit dem Rad sind sie in wenigen Minuten im Grünen oder in den umliegenden Städten. Ca. 15 Minuten nach Kettwig oder Hösel, 10 Minuten nach Velbert. Für Berufspendler und Stadtentdecker: Direkt vor dem Haus bietet die Bushaltestelle Anbindung an das Umland, den Schnellbus von/nach Essen und den S-Bahnhof Hösel (S6). Direkt vor dem Haus können sie Mittwochs und Samstags über den Wochenmarkt schlendern oder am 1. Donnerstag im Monat den Feierabendmarkt auf ein Glas Wein besuchen. Sie mögen klassische Musik oder die Oper? Steigen Sie mehrmals im Jahr in den Bus des Kulturamts und besuchen Sie Konzerte und Oper in Essen. Jede Veranstaltung in der Stadt ist für Sie ein Katzensprung. Und das Beste? Durch die Lage im Dachgeschoss haben Sie dennoch Ihre Ruhe, wenn Sie es möchten. Infrastruktur (im Umkreis von 5 km): Apotheke, Lebensmittel-Discount, Allgemeinmediziner, Kindergarten, Grundschule, Hauptschule, Realschule, Gymnasium, Gesamtschule, Öffentliche Verkehrsmittel
Sonstiges
Private:r Anbieter:in
Privat vom Eigentümer
Exposé-ID: 29456346 | Referenz-ID: 404083
Ähnliche Immobilien











