


Online seit: 06.11.2025
Traumhafter Ausblick - Idyllisch gelegenes, geräumiges Haus für die ganze Familie mit Garagen und KfZ-Montage-Bereich
98634 Wasungen/ Wahns149.990 €
Kaufpreis
6.0
Zimmer
183 m²
Wohnfläche
954 m²
Grundstücksfläche
Ausstattung & Merkmale
Gäste WCKellerKabel TV
Eckdaten
| Kaufpreis: | 149.990 € |
| Käufercourtage: | 3,57 % inkl. der gesetzl. MwSt. |
Beschreibung
Das ursprünglich in den 1930er-Jahren errichtete Wohnhaus erstreckt sich über zwei Wohngeschosse und ist voll unterkellert (inklusive Garage).
Der Anbau des rechten Gebäudeteils erfolgte um 1976.
Die Fläche der beiden Wohnetagen bemisst sich aktuell zusammen auf über 180 m².
Zum Anwesen gehört die im benachbarten Nebengebäude zu findende große Garage mit Platz für bis zu 3 PKWs, die in der Vergangenheit als kleine KFZ-Montagehalle genutzt wurde und noch heute mit einer Installations-Grube sowie der Möglichkeit zum Wiedereinbau einer Hebebühne (ausreichende Raumhöhe) beste Voraussetzungen für die Wiederaufnahme der ehemaligen Nutzung bietet.
Ausstattung
Zustand und Ausstattung der Räumlichkeiten ist mit einem normalem Abnutzungsgrad der letzten, langjährigen Bewohnung der Alteigentümer zu bezeichnen.
Die Raumaufteilung ist teils sehr großzügig.
Sanierungen/ Modernisierungen am und im Haus wurden vorwiegend in den 1990er Jahren sowie zum Teil fortlaufend durchgeführt.
Die Käufer/ neuen Eigentümer haben das Haus nach eigenen Vorstellungen in umfassendem Rahmen zu renovieren, zum Teil auch zu modernisieren.
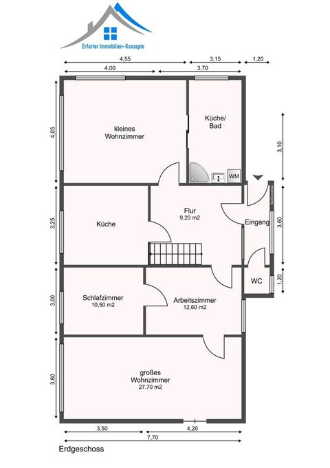
Grundriss

Lage
Das Anwesen befindet sich in Wahns, einem Ortsteil von Wasungen, unweit der Kreisstadt Meiningen, an der durch den Ort führenden Hauptstraße. Das Grundstück ist hanglagig und bietet vom oberen Grundstücksteil einen herrlichen Blick über die Dächer des Ortes bis weit in die idyllische Landschaft hinein.
Sonstiges
Bitte nutzen Sie auch die Möglichkeit unseres virtuellen 360°-Rundganges durch das Gebäude, um sich einen ersten Eindruck von dem Anwesen verschaffen zu können - fordern Sie diesen einfach bei uns an!
Sie erreichen uns per Mail unter info@erfurter-immo.de oder telefonisch unter 01590 4030988.
Bei mehreren Kaufinteressenten behält sich der Verkäufer die Veräußerung der Immobilie in einem einfachen Bieterverfahren zu einem Mindestgebot von 149.990,00 € vor.
Torsten Erfurth
Herr Ron Seidler
Impressum- Telefonisch (Festnetz): 004915904030988
- Telefonisch (Mobil): 004915904030988
Exposé-ID: 29467185 | Referenz-ID: RS-2025-60
Ähnliche Immobilien
Wie auf allen Online-Portalen kann es auch bei meinestadt.de in Einzelfällen passieren, dass gefälschte Anzeigen ausgespielt werden. Trotz umfangreicher Bemühungen lässt sich das leider nicht vollständig vermeiden. Lies hier unsere Sicherheitshinweise zum Thema Immobilienbetrug und erfahre, woran du solche Anzeigen erkennst, wie du dich vor Betrugsversuchen schützt und wie du dich im Betrugsfall verhältst. Bitte beachte, dass meinestadt.de und immowelt.de nicht für die Inhalte der Inserate verantwortlich sind und im Schadensfall nicht haften.

Jetzt noch schneller sein
Neue Immobilien? Du erfährst es zuerst!
Die meinestadt.de App benachrichtigt dich sofort per Push-Mitteilung, wenn neue Immobilien eingestellt wurden, die zu deiner Suche passen. App jetzt downloadenServices für die Immobiliensuche
Weitere Häuser zum Kauf
Weitere Häuser zum Kauf
Wohnungen zum Kauf
Umgebungsinfos










