


Online seit: 11.11.2025
Vielseitig nutzbare Gewerbefläche in Köpenick – ideal für Praxis, Büro oder Einzelhandel!
Kaulsdorfer Strasse 129, 12555 BerlinEckdaten
| Kaltmiete: | 1.932 € |
| Warmmiete: | 3.103,76 € |
| Heizkosten in Nebenkosten enthalten: | Ja |
| Nebenkosten: | 676,2 € |
| Kaution: | 5.796 € |
Beschreibung
Ausstattung
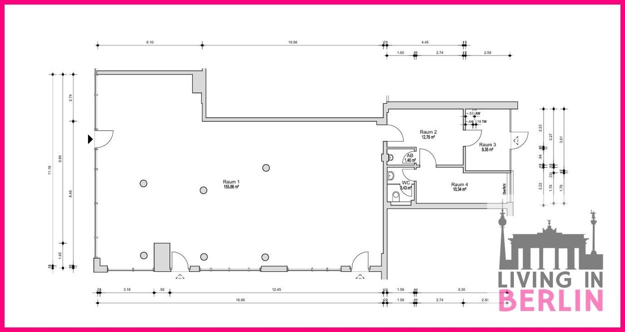
Grundriss

Lage
Die Gewerbeeinheit befindet sich im beliebten Berliner Bezirk Treptow-Köpenick - einem der grünsten und wasserreichsten Stadtteile der Hauptstadt. Die Lage zeichnet sich durch eine ideale Kombination aus urbaner Infrastruktur und naturnaher Umgebung aus. In unmittelbarer Nähe liegen zahlreiche Wohngebiete, was die Einheit insbesondere für Dienstleistungen, Einzelhandel oder gesundheitsnahe Nutzungen interessant macht. Durch die gute Anbindung an den öffentlichen Nahverkehr – unter anderem mit der Straßenbahnlinie 62 sowie diversen Busverbindungen – ist die Immobilie sowohl für Kunden als auch für Mitarbeitende bequem erreichbar. Der S-Bahnhof Köpenick liegt nur wenige Minuten entfernt und ermöglicht eine direkte Verbindung in die Berliner Innenstadt. Die Kaulsdorfer Straße selbst ist eine belebte Verbindungsstraße mit hoher Sichtbarkeit und regelmäßigem Durchgangsverkehr. Parkmöglichkeiten stehen im öffentlichen Straßenraum zur Verfügung. Insgesamt bietet die Lage der Gewerbeeinheit eine attraktive Grundlage für verschiedenste gewerbliche Konzepte – sei es als Praxis, Büro, Studio oder Ladenfläche.
Sonstiges

Living in Berlin e.K.
Frau Alina Staritz
Impressum- Telefonisch (Festnetz): 00493051487800
- Telefonisch (Mobil): 00491785055635
Exposé-ID: 29483773 | Referenz-ID: GEW056
Ähnliche Immobilien










