


Online seit: 11.10.2022
Büroflächen im Herzen Roths nähe Schloss
91154 Rothauf Anfrage
Kaltmiete
219 m²
Fläche
105 m²
Teilbar ab
Ausstattung & Merkmale
provisionsfrei
Eckdaten
| Provision: | provisionsfrei |
| Kautionstext: | 3 Monatsmieten |
Beschreibung
In der Nähe des Rother Schloss am Altstadtring werden Büroflächen in verschiedenen Größen vermietet.
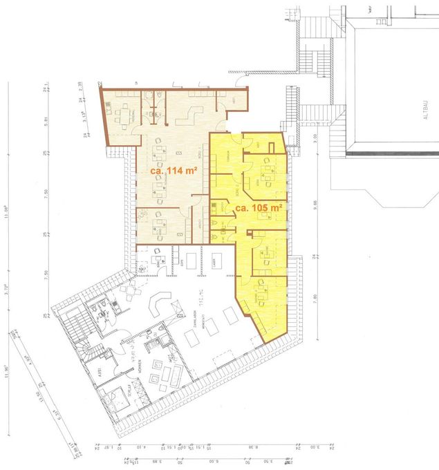
Im 2.OG befindet sich eine Büroeinheit mit 114 m² sowie Alternativ mit 105 m² frei zur Anmietung. Weitere Flächen im 1. Obergeschoss mit 390 m² und mit 217 m² sind vorhanden.
Die Flächen können je nach Absprache mit dem Eigentümer getrennt bzw. zusammengelegt werden.
Die Büroeinheit wird nach Mieterwünschen neu ausgebaut; Bezug kann ca. 3 Monate nach Mietvertragsabschluss erfolgen.
Als Grundausstattung sind Teppichboden, abgehängte Rasterdecken, sowie Anschlüsse für eine Teeküche kalkuliert.
Die Mietdauer beträgt 10 Jahre - bei einem Mietverhältnis mit einer Laufzeit von lediglich 5 Jahren ist dem Vermieter ein Baukostenzuschuss zu bezahlen. Die Miete beträgt 8,45 € / m² zzgl. Betriebskosten-Vorauszahlung zzgl. MwSt. Im Untergeschoss liegt eine Tiefgarage mit insgesamt 33 Kfz-Stellplätzen.
Keine zusätzliche Mieterprovision!
Ausstattung
- flexible Flächen möglich
- 33 Tiefgaragen-Stellplätze
- zentrale Lage
Grundriss

Sonstiges
Es liegt ein Energieverbrauchsausweis vor.
Dieser ist gültig bis 3.2.2030.
Endenergieverbrauch beträgt kwh/(m²*a).
Wesentlicher Energieträger der Heizung ist Gas.
Ihr Ansprechpartner:
Stefan Wartzack
wartzack@ri-immobilien.de

Wartzack & Kollegen GmbH
Herr Stefan Wartzack
Impressum- Telefonisch (Festnetz): 0179-1134019
- Fax: 09122-1504 188
Exposé-ID: 346448 | Referenz-ID: 4027
Ähnliche Immobilien
Wie auf allen Online-Portalen kann es auch bei meinestadt.de in Einzelfällen passieren, dass gefälschte Anzeigen ausgespielt werden. Trotz umfangreicher Bemühungen lässt sich das leider nicht vollständig vermeiden. Lies hier unsere Sicherheitshinweise zum Thema Immobilienbetrug und erfahre, woran du solche Anzeigen erkennst, wie du dich vor Betrugsversuchen schützt und wie du dich im Betrugsfall verhältst. Bitte beachte, dass meinestadt.de und immowelt.de nicht für die Inhalte der Inserate verantwortlich sind und im Schadensfall nicht haften.

Jetzt noch schneller sein









