


Online seit: 26.09.2025
Effizient Planungssicher und attraktiv Ihr neues Fertighaus in Langensendelbach
91094 Langensendelbach699.500 €
Kaufpreis
5.0
Zimmer
129 m²
Wohnfläche
668 m²
Grundstücksfläche
Ausstattung & Merkmale
Gäste WCprovisionsfrei
Eckdaten
Kaufpreis: | 699.500 € |
Provision: | provisionsfrei |
Beschreibung
Direkt im wunderschönen Ort liegt dieses Familienparadies. Das stilvolle Einfamilienhaus ist Teil eines modernen und gepflegten Ensembles von Stadt- und Gartenhofhäusern. Der Gebäudekomplex wird in mit Holzständer Bauweise mit neuester Energieeffizient und nachhaltig erbaut und kann je nach Wunsch von KFW 55-40 plus fertiggestellt werden.
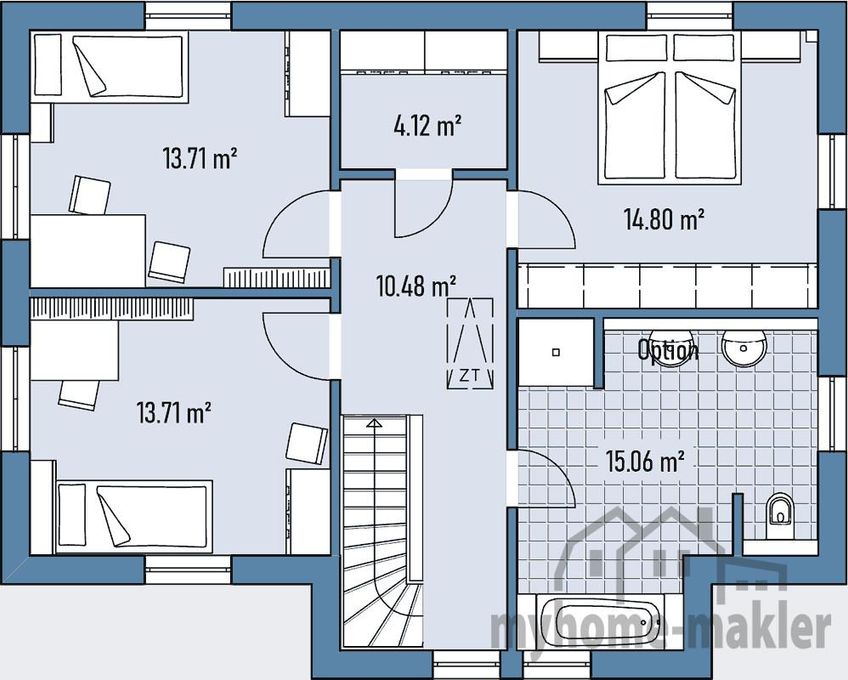
Im Erdgeschoss des Einfamilienhauses befinden sich die offene Küche, das Gäste-WC sowie das kombinierte Wohn- und Esszimmer mit Ausgang zum kleinen, idyllischen Garten. Im Garten schließt sich eine sichtgeschützte Terrasse mit perfekter Südausrichtung direkt an das Haus an. Die Küche ist vollständig möbliert und mit modernen Einbaugeräten der Marke Bosch ausgestattet. Flur, Gäste-WC und Küche sind hochwertig gefliest. Das Wohn- und Esszimmer verfügt neben den bodentiefen Fenstern über hochwertige Eichen-Parkettdielen. Im Flur ist eine praktische Garderobe abgetrennt.
Im Obergeschoss finden sich zwei Kinderzimmer mit bodentiefen Fenstern sowie ein komfortabel eingerichtetes Familienbad mit Dusche und Wanne. Der Waschtisch ist um einem hochwertigen und eleganten Unterbauschrank ergänzt. Dazu passend gibt es zusätzlich einen geräumigen Hochschrank. Das Bad hat ein Oberlicht zur natürlichen Beleuchtung und ist hell gefliest. Der Flur und die beiden Zimmer sind mit dem schönen Eichen-Parkett ausgestattet.
Der optionale Keller finden sich praktische Hauswirtschafts- und Technikräume sowie ein großer Raum für Vorräte und Abstellmöglichkeiten. In diesem Geschoss ist auch der Zugang zur Tiefgarage. Ein direkt vor der Außentür liegender Stellplatz gehört mit zum Haus. Von dort können Einkäufe und andere Dinge mit wenigen Schritten und trockenen Fußes ins Haus gebracht werden.
Ausstattung
Das Haus verfügt über eine Lüftungsanlage mit Wärmerückgewinnung, was einen erheblichen Wohnkomfort verbunden mit geringen Heizkosten ohne fossile Brennstoffe verspricht. Die Heizung erfolgt zentral für die gesamte Anlage über eine neue moderne Luftwärmepumpe die mit einer Photovoltaikanlage kombiniert werden kann. DENKEN SIE AUCH AN MORGEN MIT EINEM EFFIZIENZKLASSEN HAUS 40 im Standart, so tragen Sie dem Gedanken von Umweltschutz und Nachhaltigkeit Rechnung und erhalten sogar noch eine Förderung. Ein gültiger Energieausweis zum Gebäude liegt vor. Ein schneller VDSL-Internetanschluss ist an der Adresse verfügbar.
Das durchdachte und moderne Wohnkonzept machen das Objekt zu einem schicken und geschmackvollen Eigenheim vor allem für Familien und besticht durch:
-Ausbaustufe Technikfertig optional auch in Maler- und Einzugsfertig
-Tondachziegel INKL.
-kontrollierte Be- und Entlüftung mit optionaler Kühlfunktion
-modernste energiesparender Frischluft Haustechnik
-bodentiefe Fenster mit Dreifachverglasung
-E-Rollläden INKL.
-Optional Keller mit Zugang zur Tiefgarage
-Festpreisgarantie
-verkürzte Bauzeiten möglich mit Fertigstellunggarantie
-KfW-40 Effizienshaus INKL.
Die Möblierung und Innenausstattung auf den Bildern, zeigen Ihnen Beispielhaft, wie ihr neues Zuhause aussehen könnte. In unserem Bemusterungszentrum wählen Sie Ihre individuellen hochwertigen Ausstattungsmerkmale direkt aus einem großen Sortiment.
Grundriss

Lage
Das angebotene Grundstück befindet sich in einem Siedlungsgebiet und ist unbebaut. Es zeichnet sich durch seine gute, ruhige und ländliche Lage direkt mit allen Möglichkeiten des täglichen Bedarfs. Die Terrasse mit sehr guter Lage, lässt Sie an ruhigen Tagen entspannen. Die notwendigen Einkaufsmöglichkeiten und Schulen finden Sie direkt im Ort. Die nahegelegene Bus oder Bahnverbindung erreichen Sie in Kürze. Das Grundstück wird separat beim Inhaber/Verwalter erworben werden, Zwischenverkauf vorbehalten. Die üblichen Kaufnebenkosten für das Grundstück werden separat berechnet.
Sonstiges
Angebotspreis *Berechnungsbeispiel: Inkl. Haus Technikfertig, Baugrundstück, ohne Baunebenkosten und Grundstückskaufnebenkosten.
Die Abbildungen zeigen zum Teil Sonderausstattungen. Flächenangaben nach DIN 277. Änderungen des Preises oder der Ausstattungen, sowie Irrtümer oder Zwischenverkauf sind vorbehalten.
Es gilt die jeweilige Baubeschreibung und Preisliste des Anbieters. Für Angaben von Dritten, Eigentümern und/oder Behörden kann keine Gewähr übernommen werden.
Die von uns gemachten Informationen beruhen auf Angaben des Verkäufers bzw. der Verkäuferin. Für die Richtigkeit und Vollständigkeit der Angaben kann keine Gewähr bzw. Haftung übernommen werden. Ein Zwischenverkauf und Irrtümer sind vorbehalten.
Wir weisen auf unsere Allgemeinen Geschäftsbedingungen hin. Durch weitere Inanspruchnahme unserer Leistungen erklären Sie die Kenntnis und Ihr Einverständnis.
Die Baunebenkosten, wie zum Beispiel Grunderwerbskosten, Notar, Hausanschlüsse, behördliche Gebühren oder Finanzierungskosten, sind nicht im Gesamtpreis enthalten.
Das Grundstück ist Beispielhaft angegeben und dient zur preislichen Orientierung in der Umgebung.
AUF WUNSCH empfehlen wir Ihnen eine kostenfreie Finanzierungsberatung mit Sonderkonditionen von unseren hauseigenen Finanzierungsexperten an.

IPM UG (haftungsbeschränkt)
Herr Marko Will
Impressum- Telefonisch (Festnetz): 004991194121270
- Fax: 004991130028302
- Telefonisch (Mobil): 004915120750436
Exposé-ID: 29365313 | Referenz-ID: 00645-MW
Ähnliche Immobilien
Wie auf allen Online-Portalen kann es auch bei meinestadt.de in Einzelfällen passieren, dass gefälschte Anzeigen ausgespielt werden. Trotz umfangreicher Bemühungen lässt sich das leider nicht vollständig vermeiden. Lies hier unsere Sicherheitshinweise zum Thema Immobilienbetrug und erfahre, woran du solche Anzeigen erkennst, wie du dich vor Betrugsversuchen schützt und wie du dich im Betrugsfall verhältst. Bitte beachte, dass meinestadt.de und immowelt.de nicht für die Inhalte der Inserate verantwortlich sind und im Schadensfall nicht haften.

Jetzt noch schneller sein
Neue Immobilien? Du erfährst es zuerst!
Die meinestadt.de App benachrichtigt dich sofort per Push-Mitteilung, wenn neue Immobilien eingestellt wurden, die zu deiner Suche passen. App jetzt downloadenServices für die Immobiliensuche
Weitere Häuser zum Kauf
Weitere Häuser zum Kauf
Wohnungen zum Kauf
Umgebungsinfos