


Online seit: 02.10.2025
ELVIRA - München/Obersendling, schöne und helle Büroräume in zentraler Lage
81379 München / Obersendling1.300 €
Kaltmiete
4.0
Zimmer
112 m²
Fläche
Ausstattung & Merkmale
Keller
Eckdaten
Kaltmiete: | 1.300 € |
Warmmiete: | 1.699 € |
Heizkosten in Nebenkosten enthalten: | Ja |
Käufercourtage: | 2 Nettomonatsmieten zzgl. ges. 19% MwSt., vom<br>Mieter zu zahlen. |
Nebenkosten: | 399 € |
Kautionstext: | 3 Nettomonatsmieten |
Beschreibung
Sehr schöne und moderne Büro-/Praxisräume in einer wirklich sehr guten und ruhigen Lage in München Obersendling.
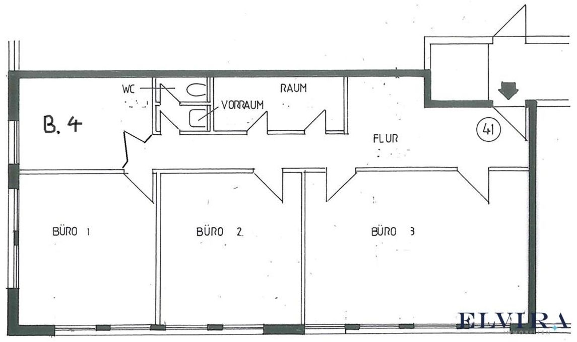
Diese tollen Büroräume befinden sich im 1.Obergeschoss des bekannten Südcenters in Obersendling und verfügen über vier helle und geräumige Räume, welche mit großen Fenstern, Deckenspots und einem schönen hellen Laminattboden ausgestattet sind. Der Empfangsbereich/Flur verfügt über einen Empfangstisch, Deckenspots und einem schönen hellen Laminattboden . Weiter ist eine Teeküche, ein WC und ein praktischer Vorrats-/Technikraum vorhanden. Dieses tolle Angebot runden die in zwei Büroräumen, im Vorrats-/Technikraum sowie im Flur integrierten und geräumigen Einbauschränke zum Teil in Raumhöhe ab, welche sehr viel Stauraum bieten.
Hinweis:
Zu der Warmmiete wird die gesetzliche Mehrwertsteuer in Höhe von 19% dazu gerechnet.
Ausstattung
• Büroräume, Vorratsraum und Flur: Laminatt
• WC: Fliesen
• Deckenspots in Büroräume, Flur und WC
• Geräumige Einbauschränke zum Teil in Raumhöhe im Büro 2 und 3, Flur und Vorratsraum
• Helle Räume durch große Fenster
• Praktischer Vorrats-/Technikraum
• Einbauküche
Grundriss

Lage
Die Büroräume befinden sich in München-Obersendling. Die U-Bahn Haltestelle "Machtlfingerstraße" erreichen Sie bequem in wenigen Gehminuten, von hier aus können Sie auch weitere Buslinien nutzen. Mit dem PKW erreichen Sie schnell den mittleren Ring, sowie die Autobahn A96 Lindau und die A95 Richtung Garmisch-Partenkirchen. In der Nähe befinden sich Geschäfte des täglichen Bedarfs.
Sonstiges
Wir freuen uns über Ihre Kontaktanfrage über das Online-Formular und bitten Sie von telefonischen Kontaktaufnahmen abzusehen.
Kontaktanfrage bitte ausschließlich per E-Mail (Anbieter kontaktieren) und mit Angabe der vollständigen Anschrift.
Daten zum energetischen Zustand:
•Befeuerung: Gas
•Heizungsart: Zentralheizung
•Baujahr: 1985
•Energieausweis: Verbrauchsausweis
•Energieendverbrauch: 119,50 kWh/(m²a)
•Energieausweis gültig bis 12.12.2025
•Energieeffizienzklasse: D
•Baujahr laut Energieausweis: 1985
•Wesentlicher Energieträger: Gas

ELVIRA Immobilien GmbH
Herr Erfort Rrecaj, VM
Impressum- Telefonisch (Festnetz): 00498928807507
- Fax: 00498927312259
Exposé-ID: 29376725 | Referenz-ID: ER3950
Ähnliche Immobilien
Wie auf allen Online-Portalen kann es auch bei meinestadt.de in Einzelfällen passieren, dass gefälschte Anzeigen ausgespielt werden. Trotz umfangreicher Bemühungen lässt sich das leider nicht vollständig vermeiden. Lies hier unsere Sicherheitshinweise zum Thema Immobilienbetrug und erfahre, woran du solche Anzeigen erkennst, wie du dich vor Betrugsversuchen schützt und wie du dich im Betrugsfall verhältst. Bitte beachte, dass meinestadt.de und immowelt.de nicht für die Inhalte der Inserate verantwortlich sind und im Schadensfall nicht haften.

Jetzt noch schneller sein