


Online seit: 15.10.2025
Helle, modernisierte Wohnung mit Balkon & Tiefgaragenstellplatz – ideal zum Wohnen oder Investieren
90469 NürnbergAusstattung & Merkmale
Eckdaten
Kaufpreis: | 290.000 € |
Hausgeld: | 309 € |
Provision: | provisionsfrei |
Beschreibung
Ausstattung
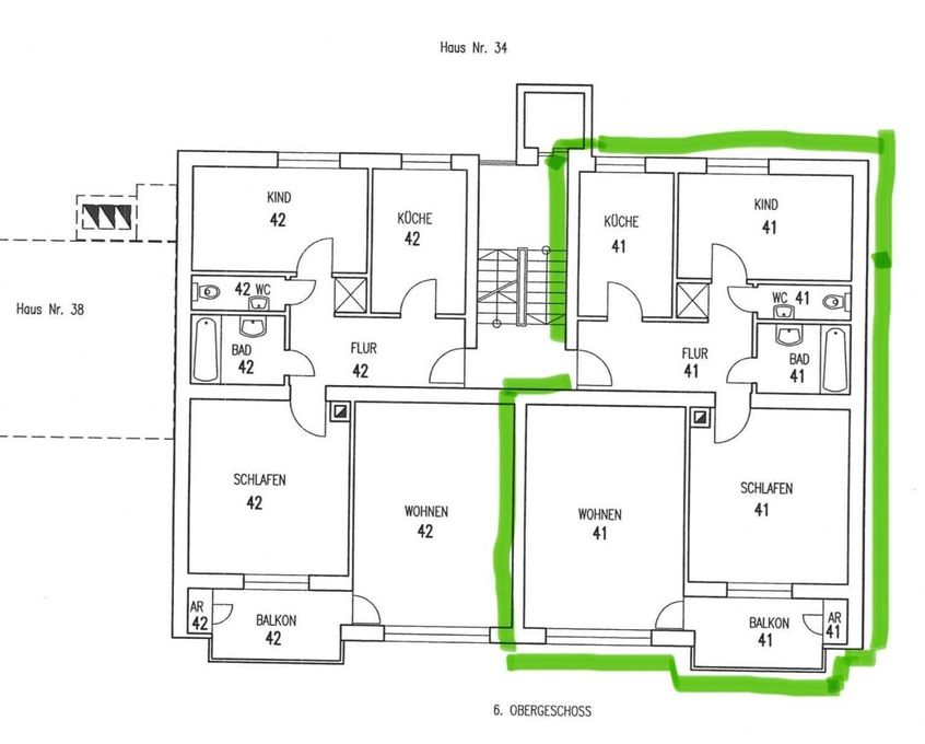
Grundriss

Lage
- Beliebter Stadtteil im Süden Nürnbergs mit hohem Grünanteil - Ruhige, gepflegte Wohngegend mit überwiegend Mehrfamilienhäusern - Sehr gute Verkehrsanbindung: Bus und U-Bahn in wenigen Minuten erreichbar - Innenstadt Nürnberg in ca. 10–15 Minuten erreichbar - Einkaufsmöglichkeiten für den täglichen Bedarf in direkter Nähe - Schulen, Kindergärten und Ärzte fußläufig vorhanden - Naherholungsmöglichkeiten wie Dutzendteich, Luitpoldhain und Volkspark in der Umgebung - Gute Anbindung an Autobahn A73 und Frankenschnellweg - Hohe Wohn- und Lebensqualität mit stabiler Mietnachfrage Die Gartenstadt zählt zu den nachgefragten Wohnlagen Nürnbergs – ruhig, grün und dennoch hervorragend angebunden. Damit bietet die Lage ideale Voraussetzungen sowohl für Eigennutzer, die Wert auf Lebensqualität legen, als auch für Kapitalanleger, die auf eine nachhaltige Vermietbarkeit setzen. Infrastruktur (im Umkreis von 5 km): Apotheke, Lebensmittel-Discount, Allgemeinmediziner, Kindergarten, Grundschule, Hauptschule, Öffentliche Verkehrsmittel
Sonstiges
Private:r Anbieter:in
Privat vom Eigentümer
Exposé-ID: 29405135 | Referenz-ID: 398713
Ähnliche Immobilien
