
Online seit: 01.02.2024
Großes Wohnhaus mit Büroetage in guter Wohnlage von Kleve
47533 Kleve349.500 €
Kaufpreis
14.0
Zimmer
228 m²
Wohnfläche
813 m²
Grundstücksfläche
Ausstattung & Merkmale
Balkon / TerrasseKellerEinbaukücheGarage / Stellplatz
Eckdaten
| Kaufpreis: | 349.500 € |
| Käufercourtage: | 3,57 % |
| Angaben zur Provision: | Der Käufer zahlt im Erfolgsfall an die Firma HIS Immobilien GmbH eine Maklerprovision in Höhe von 3,57 % einschließlich 19% Mehrwertsteuer. Die Provision errechnet sich aus dem beurkundeten Kaufpreis. |
Beschreibung
Diese große Doppelhaushälfte teilt sich wie folgt auf:
Kellergeschoss
Flur, Kelleraußentreppe, Heizungsraum, alter Öl-Tankraum, Waschküche, 4 Kellerräume, 2 Abstellräume
Erdgeschoss
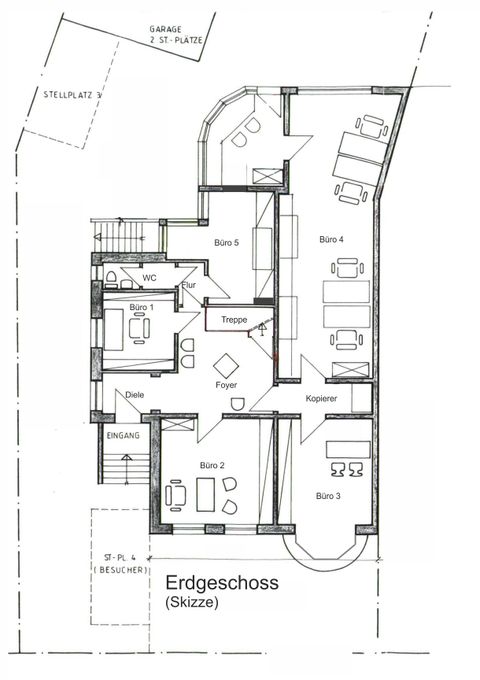
Diele, Eingangsbereich, 6 Büros, Toilette, Kopierraum
Obergeschoss
Flur, 2 Schlafzimmer, großes Wohnzimmer mit Balkon, Esszimmer, Küche, Badezimmer
Dachgeschoss
Flur, 4 Zimmer, Dachboden
Spitzboden
Dachboden
Ausstattung
Die ursprünglich ca. 1924 erbaute linke Haushälfte wurde als Wohnhaus konzipiert. In den Nachkriegsjahren wohnten hier zeitweise mehrere Familien.
Im Jahr 1964 wurde anstelle der damaligen Terrasse ein Anbau errichtet. Hierbei entstanden zwei neue Räume im Erdgeschoss, da man seinerzeit mehr Platz für die eigene Anwaltskanzlei benötigte. Noch heute sind hier 2 Büros vorhanden. Im ersten Stock entstanden so ein neues Schlafzimmer und eine offene Terrasse.
1968 wurde die alte Einzelgarage abgerissen und eine neue Doppelgarage errichtet.
1998 fanden die letzten großen Umbaumaßnahmen am Gebäude statt. Unter anderem erhielt die offene Terrasse im ersten Stock Außenwände und Flachdach und wurde somit zur großen Küche mit einer markanten halbrunden Fensterfront umgestaltet.
Im Dachgeschoss sind 3 weitere Schlafzimmer vorhanden. Neben den Schlafzimmern ist auch noch ein weiteres Zimmer und ein ungedämmter Dachboden als Abstellraum vorhanden. Über eine Einschubtreppe gelangt man in den ebenfalls ungedämmten Spitzboden des Hauses. Dieser Bereich dient als weitere Abstellfläche.
Der Kellerbereich befindet sich unterhalb des Haupthauses und hat ca. 109 qm. Hier ist die Erdgas-Zentralheizung aus dem Jahre 1993 installiert. Die alte Öl-Heizung sowie der Öl-Tank (beide außer Betrieb) sind ebenfalls noch vorhanden.
Teile des Kellers werden als Archivräume für die Anwaltskanzlei genutzt. Diese Räume sind in einem guten und sanierten Zustand. Der Rest des Kellers befindet sich noch im ursprünglichen Zustand und weist typische Feuchtigkeitsprobleme im Außenmauerwerk auf.
Insgesamt zeigt sich die Immobilie im typischen Stil der 60er-Jahre. So findet man im Hauptgebäude zum Beispiel noch überwiegend die ursprünglichen Holzfenster mit Einfachverglasung.
Um das Gebäude zeitgemäßer zu nutzen, sind umfangreiche Modernisierungs- und Sanierungsmaßnahmen durchzuführen.
Seit den 50er-Jahren diente das Erdgeschoss als Anwaltskanzlei. Bis heute ist hier in den insgesamt 6 Büros eine
Grundriss

Lage
Die Haushälfte befindet sich in einer verkehrsgünstigen Lage am Rande der Klever Oberstadt. Die Kreisstadt Kleve hat rund 52.000 Einwohner und eine gute Infrastruktur. Alle Einkaufsmöglichkeiten, Kindergärten, Schulen, Krankenhaus usw. sind in unmittelbarer Nähe vorhanden. So erreichen Sie in nur wenige Minuten das Klever Einkaufszentrum „EOC“ (Oberstadt) und das Zentrum in der Unterstadt. Das Naherholungsgebiet „Reichswald“ ist in unmittelbarer Nähe. Kleve ist über die BAB 3 und BAB 57 sowie über die Bundesstraßen 9 und 57 gut aus allen Richtungen erreichbar.
Sonstiges
PRO & CONTRA – Kurzübersicht
+++ großes Wohn- und Geschäftshaus +++
+++ zentrale Lage von Kleve +++
+++ ca. 155 qm Bürofläche und 6 Zimmer im EG +++
+++ ca. 228 qm Wohnfläche und 8 Zimmer im OG und DG +++
+++ inkl. Unterkellert von ca. 109 qm +++
+++ inkl. Doppelgarage +++
+++ inkl. möglicher zusätzlicher Bebauung +++
--- sanierungsbedürftig ---
Gerne stellen wir Ihnen das Gebäude ausführlich vor, oder Sie besuchen uns in unserem Büro. Bei allen Fragen rund um die Immobilie stehen wir Ihnen gerne zur Verfügung.
Wir freuen uns auf Ihren Kontakt! Ihr HIS Team.
Exposé-ID: 1034451 | Referenz-ID: 99908306#vrsOY
Ähnliche Immobilien
Wie auf allen Online-Portalen kann es auch bei meinestadt.de in Einzelfällen passieren, dass gefälschte Anzeigen ausgespielt werden. Trotz umfangreicher Bemühungen lässt sich das leider nicht vollständig vermeiden. Lies hier unsere Sicherheitshinweise zum Thema Immobilienbetrug und erfahre, woran du solche Anzeigen erkennst, wie du dich vor Betrugsversuchen schützt und wie du dich im Betrugsfall verhältst. Bitte beachte, dass meinestadt.de und immowelt.de nicht für die Inhalte der Inserate verantwortlich sind und im Schadensfall nicht haften.

Jetzt noch schneller sein
Neue Immobilien? Du erfährst es zuerst!
Die meinestadt.de App benachrichtigt dich sofort per Push-Mitteilung, wenn neue Immobilien eingestellt wurden, die zu deiner Suche passen. App jetzt downloadenServices für die Immobiliensuche
Weitere Häuser in der Umgebung
Weitere Häuser zum Kauf
Weitere Häuser zum Kauf
Wohnungen zum Kauf
Umgebungsinfos











