


Online seit: 12.09.2025
Idyllisches Einfamilienhaus mit sonnigem Südgarten in begehrter Lage
82131 GautingAusstattung & Merkmale
Eckdaten
| Kaufpreis: | 1.675.000 € |
| Käufercourtage: | Käuferprovision beträgt 2,98 % (inkl. MwSt.) des beurkundeten Kaufpreises |
Beschreibung
Ausstattung
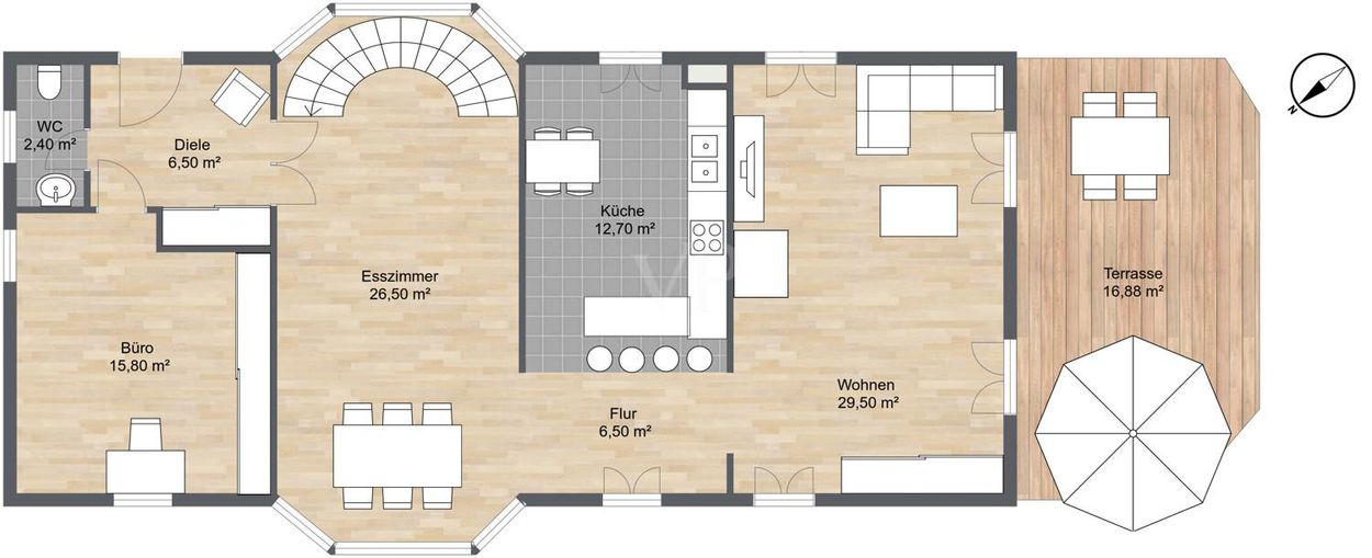
Grundriss

Lage
Gauting liegt im Südwesten von München inmitten des schönen Würmtals. Aufgrund der ausgezeichneten Infrastruktur, der guten Verkehrsanbindung und des hohen Freizeitwerts ist die Gemeinde besonders beliebt. Mit der zentral gelegenen S-Bahnstation „Gauting“ ist die Münchner Innenstadt bequem erreichbar, mit dem PKW dauert die Fahrt ins Zentrum rund 20 Minuten. Auch die Autobahnen München–Garmisch (A95) und Lindau (A96) sind schnell erreichbar. Das Umfeld des Hauses besticht durch seine ruhige, gewachsene Wohnlage mit viel Grün. Hier genießt man die Vorzüge einer idyllischen Umgebung in direkter Nähe zu Wiesen, Wäldern und Spazierwegen entlang der Würm, während das Gautinger Zentrum mit Einkaufsmöglichkeiten, Cafés, Restaurants und allen Einrichtungen des täglichen Bedarfs nur wenige Minuten entfernt liegt. Familien profitieren von kurzen Wegen zu Kindergärten, Schulen und Freizeitangeboten – vom Sommerbad bis hin zu Sport- und Kulturvereinen. Der hohe Erholungswert prägt die Wohnqualität: Der Starnberger See, das Voralpenland und die nahegelegenen Berge bieten vielfältige Möglichkeiten für Ausflüge und Sportaktivitäten. Gleichzeitig ist die ruhige Wohnlage ein Rückzugsort, der naturnahes Wohnen mit einer hervorragenden Anbindung an die Metropole München verbindet.
Sonstiges
VON POLL IMMOBILIEN Gräfelfing
Herr Qendrim Rexhepi
Impressum- Telefonisch (Festnetz): 004989858361080
- Fax: 0049898583610811
Exposé-ID: 29331411 | Referenz-ID: 24225034
Ähnliche Immobilien











