


Online seit: 24.10.2025
Einziehen und wohlfühlen: Modernes Reihenmittelhaus mit vielen Schlafzimmern und schönem Garten
47198 DuisburgAusstattung & Merkmale
Eckdaten
| Kaufpreis: | 299.000 € |
| Provision: | provisionsfrei |
Beschreibung
Ausstattung
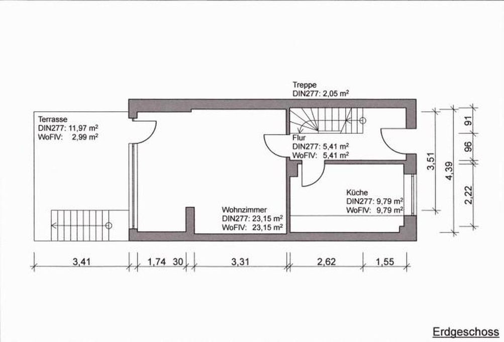
Grundriss

Lage
Die Immobilie befindet sich in ruhiger Lage von Duisburg-Hochheide mit guter Infrastruktur. Einkaufsmöglichkeiten, Schulen und Kindergärten sind in wenigen Minuten erreichbar. Der nahegelegene Üttelsheimer See lädt zu Spaziergängen, Radtouren und Erholung im Grünen ein. Dank der schnellen Anbindung an die A40 und A42 sind auch die Duisburger Innenstadt sowie die umliegenden Städte bequem erreichbar. Öffentliche Verkehrsmittel befinden sich ebenfalls in unmittelbarer Nähe. Infrastruktur (im Umkreis von 5 km): Apotheke, Lebensmittel-Discount, Allgemeinmediziner, Kindergarten, Grundschule, Realschule, Gymnasium, Gesamtschule, Öffentliche Verkehrsmittel
Sonstiges
Private:r Anbieter:in
Privat vom Eigentümer
Exposé-ID: 29425919 | Referenz-ID: 393083
Ähnliche Immobilien











